Back to Results

287

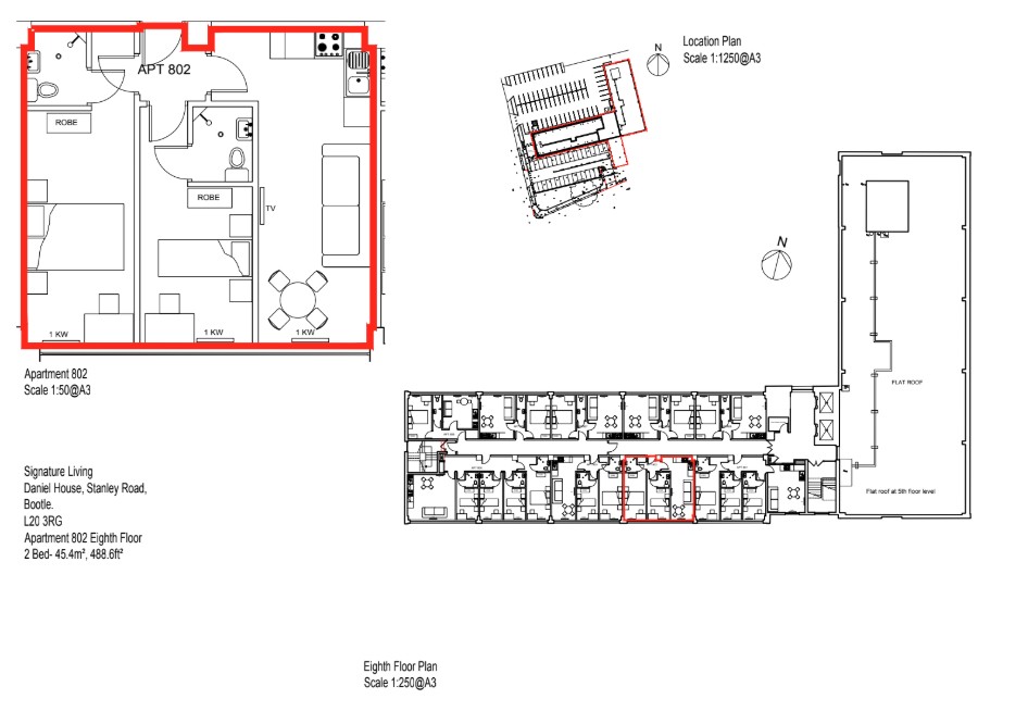
Apartment 117 Daniel House, 31 Trinity Road, Bootle L20 3TB

Auction Date: 26/03/2026 9am

Property Type

Apartment

Tenure

Leasehold

Occupancy

Subject to a tenancy

Description

A two bedroom leasehold apartment located within a purpose built block, offered with a tenant in situ paying £500pcm. The accommodation briefly comprises kitchen/living/dining area and two bedrooms with en-suites. Parking on site and gym access can be requested directly from the management company on site but are not included in the tenancy.

Note: The apartment is door number 802 but is registered at Land Registry as Flat 117, Daniel House, 31 Trinity Road, Bootle (L20 3TB).

The property benefits from excellent transport links and is within a short distance from Liverpool City Centre. The development sits on the corner of Trinity Road and Stanley Road and close to local amenities, schooling, Hugh Baird College and approximately 4 miles from Liverpool City Centre.

Interested parties are advised to inspect the legal pack for more information.

Tenure

Leasehold

Occupancy

Subject to a tenancy

Costs

Auction Details

The sale of this property will take place on the stated date by way of Live streamed auction and is being sold under the Unconditional sale type.

Binding contracts will be exchanged at the point of sale.

All sales are subject to our Common Auction Conditions and Bidder Terms. Properties located in Scotland and Northern Ireland will be subject to applicable local laws.

Auction Deposit and Fees

The following deposits and non- refundable auctioneers fees apply:

• 5% deposit (subject to a minimum of £5,000)

• Buyer’s Fee of £4,000 inc. VAT

There may be additional fees listed in the Special Conditions of Sale, which will be available to view within the Legal Pack. You must read the Legal Pack carefully before bidding.

Additional Information

For full details about our auction processes, please refer to the Bidder Terms which can be viewed on our home page.

This explains the types of auction and sale methods we offer, the bidding registration process, your payment obligations, and how to view the Legal Pack (and any applicable home report for residential Scottish properties).

Guide Price & Reserve Price

Each property sold is subject to a Reserve Price. The Reserve Price will be within + or - 10% of the Guide Price. The Guide Price is issued solely as a guide so that a buyer can consider whether or not to pursue their interest. A full definition can be found within the Buyers Terms. 

General

Leasehold information:
250 years from 1 February 2016. Any ground rent and service charge review periods will be confirmed in the lease documents within the legal pack.

Note:
Please be advised that the auctioneers have not personally inspected the property. Additionally, in respect of arrears, prospective buyers are directed to the summary of fees and corresponding document &apos

LPE- Statement_DAN802_Xu Zhu Qing (for LPE)&apos

within the legal pack. You are advised to make a viewing enquiry and any other necessary independent enquiries before placing their bid, as this will be binding.

Draft Sales Particulars
These sales details are awaiting vendor approval

Address

Apartment 117 Daniel House, 31 Trinity Road, Bootle L20 3TB

Guide Price

£35,000+

Key Features

  • Council Tax Band: A
  • Two bedroom apartment
  • Good Location
  • Currently let with a tenant paying £500pcm
  • EPC Rating: B

Our Nearest Office:

Liverpool
Share this Property:
Background graphic

Looking To Finance A Purchase?

Short-Term Auction Finance.

Find out more

Looking to Sell Property or Land?

Click for a free appraisal

Free Appraisal

You may also like

278

Sold Prior to Auction
40 Newbridge Lane, Stockport, Cheshire SK1 2NA
40 Newbridge Lane, Stockport, Cheshire SK1 2NA

Sold Prior to Auction

View Listing

286

Withdrawn post auction
Flat 408, Pembroke Studios, Lower Gill Street, Liverpool, Merseyside L3 5BB
Flat 408, Pembroke Studios, Lower Gill Street, Liverpool, Merseyside L3 5BB
Property Saviour

Guide Price: £18,500+

View Listing

273

Sold at auction
Room 12, St. Anns Lodge, St. Anns Lane, Leeds LS4 2SJ
Room 12, St. Anns Lodge, St. Anns Lane, Leeds LS4 2SJ

Sold for £6,000

View Listing

450+ Strong Team

Local knowledge
national coverage

Our reach covers the UK with a network of over 30 UK offices.
Find the right professional using the below dropdowns.

Our Properties for Auction
Auction and guide block_Our auctions_2

Our Auctions

Explore our upcoming auctions and discover a wide range of properties and assets. With expert support and transparent bidding, you can find opportunities that match your goals, whether buying or selling.

Our Properties for Auction
Register for Auction Alerts
Auction and guide block_auction alerts_2

Auction Alerts

Stay up to date with all our latest auctions. Sign up for tailored alerts and receive notifications when new properties go live, so you’re ready to bid.

Register for Auction Alerts
Our Guide to Buying at Auction
Auction and guide block_guide to buying_2

Guide to buying

From first-time buyers to experienced investors, our Guide to Buying gives practical tips and advice on the auction process, researching lots, and bidding confidently to secure the best opportunities.

Our Guide to Buying at Auction
Our Guide to Selling at Auction
Auction and guide block_guide to selling_2

Guide to selling

Planning to sell at auction? Our Guide to Selling shows you how to prepare your property, set the right pricing strategy, and work with our team to achieve the best results — smoothly and successfully.

Our Guide to Selling at Auction

This site uses cookies to monitor site performance and provide a more responsive and personalised experience. You must agree to our use of certain cookies. For more information on how we use and manage cookies, please read our Privacy Policy.