Back to Results

4, 6, 8 and 10 Church Street, Haworth BD22 8DR

Auction Date: 28/05/2026 9am

Description

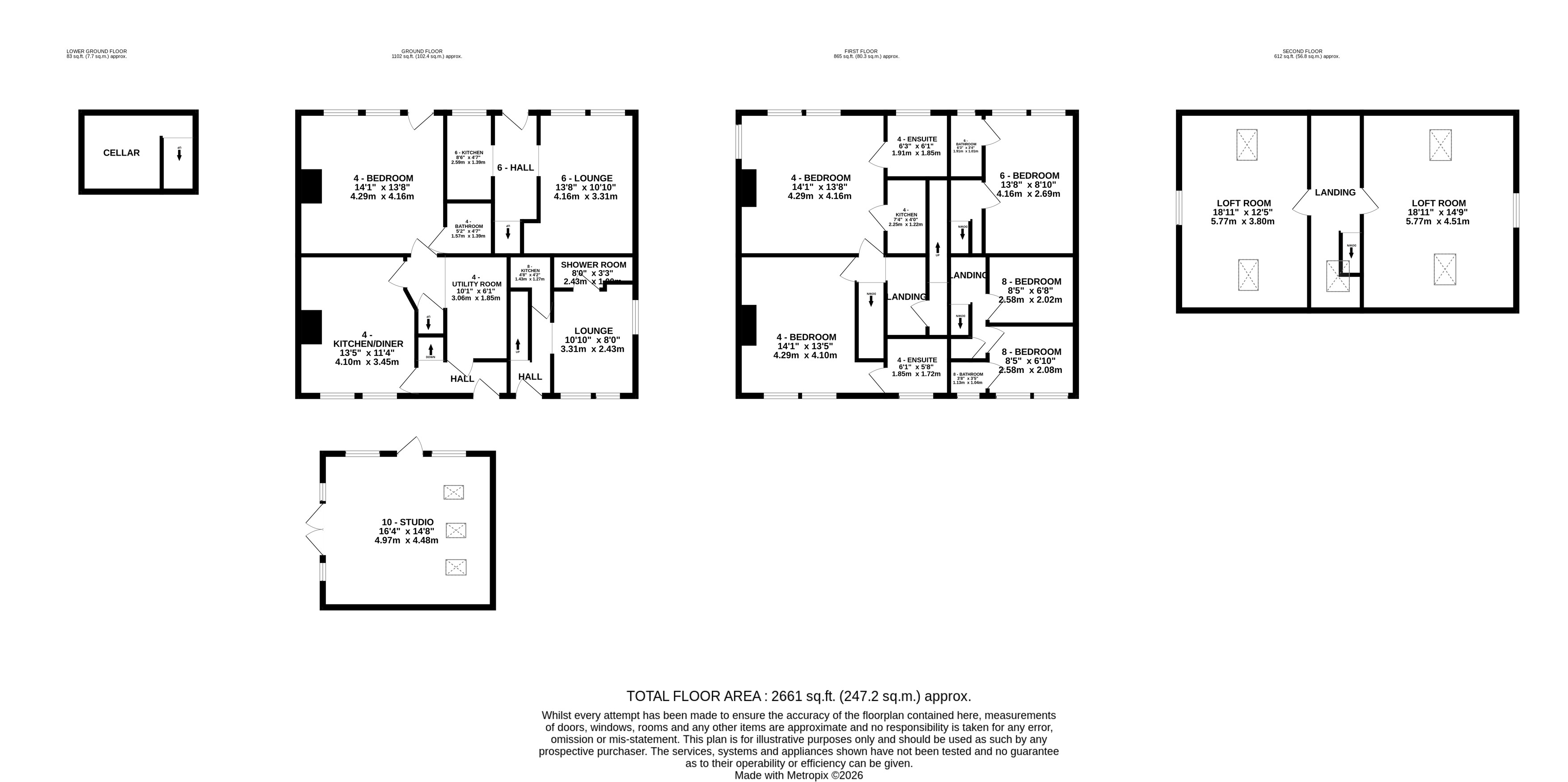
A cluster of historical buildings in the heart of Howarth village. The site comprises 1 x 2 bedroom cottage, 2 x 1 bedroom cottages, and a single storey studio to the rear. Properties 4 & 6 are let on rolling ASTs, with 8 and 10 being sold with vacant possession.

With a bustling tourism trade, the building would lend itself to use as AirBnB once brought up to the necessary standards. Alternatively, the building as a whole could potentially be redesigned, to accommodate any number of functions, i.e Guest House. This is all subject to the necessary consents.

Tucked away, behind the main cobbled street and next to the church, the property is well positioned for the historical sites of the village within a conservation area.

The images provided are from a recent inspection, of all units. Please note, however, BTG Eddisons only hold keys for 8 and 10.

There is a prohibition notice on part of number 4, preventing it from being let until the local fire department are satisfied it meets current fire safety requirements. We have been advised that rent has not been paid for some time, and arrears currently stand at £25,200.

Council Tax Bands: 4 - C, 6 - A, 8 - A.

Accommodation

Note
Please be advised that the auctioneers have not personally inspected the property. Prospective buyers are advised to make a viewing enquiry and any other necessary independent enquiries before placing their bid, as this will be binding.

Tenure

Freehold

Occupancy

Part Let Part Vacant

Costs

Auction Details

The sale of this property will take place on the stated date by way of Live streamed auction and is being sold under the Unconditional sale type.

Binding contracts will be exchanged at the point of sale.

All sales are subject to our Common Auction Conditions and Bidder Terms. Properties located in Scotland and Northern Ireland will be subject to applicable local laws.

Auction Deposit and Fees

The following deposits and non- refundable auctioneers fees apply:

• 10% deposit (subject to a minimum of £5,000)

• Buyer’s Fee of 1.2% of the purchase price (subject to a minimum of £1,500 inc. VAT)

There may be additional fees listed in the Special Conditions of Sale, which will be available to view within the Legal Pack. You must read the Legal Pack carefully before bidding.

Additional Information

For full details about our auction processes, please refer to the Bidder Terms which can be viewed on our home page.

This explains the types of auction and sale methods we offer, the bidding registration process, your payment obligations, and how to view the Legal Pack (and any applicable home report for residential Scottish properties).

Guide Price & Reserve Price

Each property sold is subject to a Reserve Price. The Reserve Price will be within + or - 10% of the Guide Price. The Guide Price is issued solely as a guide so that a buyer can consider whether or not to pursue their interest. A full definition can be found within the Buyers Terms. 

Addendum

COPY A Summary of Fees form has not been provided by the seller's lawyer and buyers are referred to the additional fees payable as set out within the special conditions of sale. These are additional to the sums specified in the paragraph ‘Auction Deposit and Fees’ set out in our marketing. Prospective buyers are advised to make all necessary independent enquiries prior to placing their bid as this will be binding.

Address

4, 6, 8 and 10 Church Street, Haworth BD22 8DR

Guide Price

£235,000+

Key Features

  • A cluster of historical buildings in the heart of Howarth village
  • One x two bedroom cottage
  • Two x one bedroom cottages
  • Single storey studio

Our Nearest Office:

Leeds
Share this Property:
Background graphic

Looking To Finance A Purchase?

Short-Term Auction Finance.

Find out more

Looking to Sell Property or Land?

Click for a free appraisal

Free Appraisal

You may also like

Live Stream Auction
15-17 Soresby Street, Chesterfield, Derbyshire S40 1JW
15-17 Soresby Street, Chesterfield, Derbyshire S40 1JW

Guide Price: £80,000+

View Listing

Live Stream Auction
Bradbury House, 39 Stamford New Road, Altrincham, Cheshire WA14 1EB
Bradbury House, 39 Stamford New Road, Altrincham, Cheshire WA14 1EB

Guide Price: £750,000+

View Listing

Live Stream Auction
13 Olton Road, Mickleover, Derby DE3 0PL
13 Olton Road, Mickleover, Derby DE3 0PL
Hannells - Mickleover

Guide Price: £95,000+

View Listing

450+ Strong Team

Local knowledge
national coverage

Our reach covers the UK with a network of over 30 UK offices.
Find the right professional using the below dropdowns.

Our Properties for Auction
Auction and guide block_Our auctions_2

Our Auctions

Explore our upcoming auctions and discover a wide range of properties and assets. With expert support and transparent bidding, you can find opportunities that match your goals, whether buying or selling.

Our Properties for Auction
Register for Auction Alerts
Auction and guide block_auction alerts_2

Auction Alerts

Stay up to date with all our latest auctions. Sign up for tailored alerts and receive notifications when new properties go live, so you’re ready to bid.

Register for Auction Alerts
Our Guide to Buying at Auction
Auction and guide block_guide to buying_2

Guide to buying

From first-time buyers to experienced investors, our Guide to Buying gives practical tips and advice on the auction process, researching lots, and bidding confidently to secure the best opportunities.

Our Guide to Buying at Auction
Our Guide to Selling at Auction
Auction and guide block_guide to selling_2

Guide to selling

Planning to sell at auction? Our Guide to Selling shows you how to prepare your property, set the right pricing strategy, and work with our team to achieve the best results — smoothly and successfully.

Our Guide to Selling at Auction

This site uses cookies to monitor site performance and provide a more responsive and personalised experience. You must agree to our use of certain cookies. For more information on how we use and manage cookies, please read our Privacy Policy.