Back to Results

245

Oak Cottage, Bishton Road, Bishton, Newport NP18 2DZ

Auction Date: 26/03/2026 9am

Description

Oak Cottage is an original stone built cottage circa 1864 is nestled within the highly sought after village of Bishton overlooking meadows and offers a superb opportunity for development and huge potential to add significant value once renovated or rebuilt (STPP).

The property briefly comprises of living room, with access to a kitchen, reception room and downstairs WC. The rear garden is accessed via the kitchen area and side gate.
Upstairs is currently a large open space, which was previously two bedrooms.

Outside the property there are two additional buildings with high ceilings, there is vehicle access and a car port area.

This detached property has incredible potential to undergo a complete renovation and be transformed into a family home with spectacular rear views stretching across countryside fields.

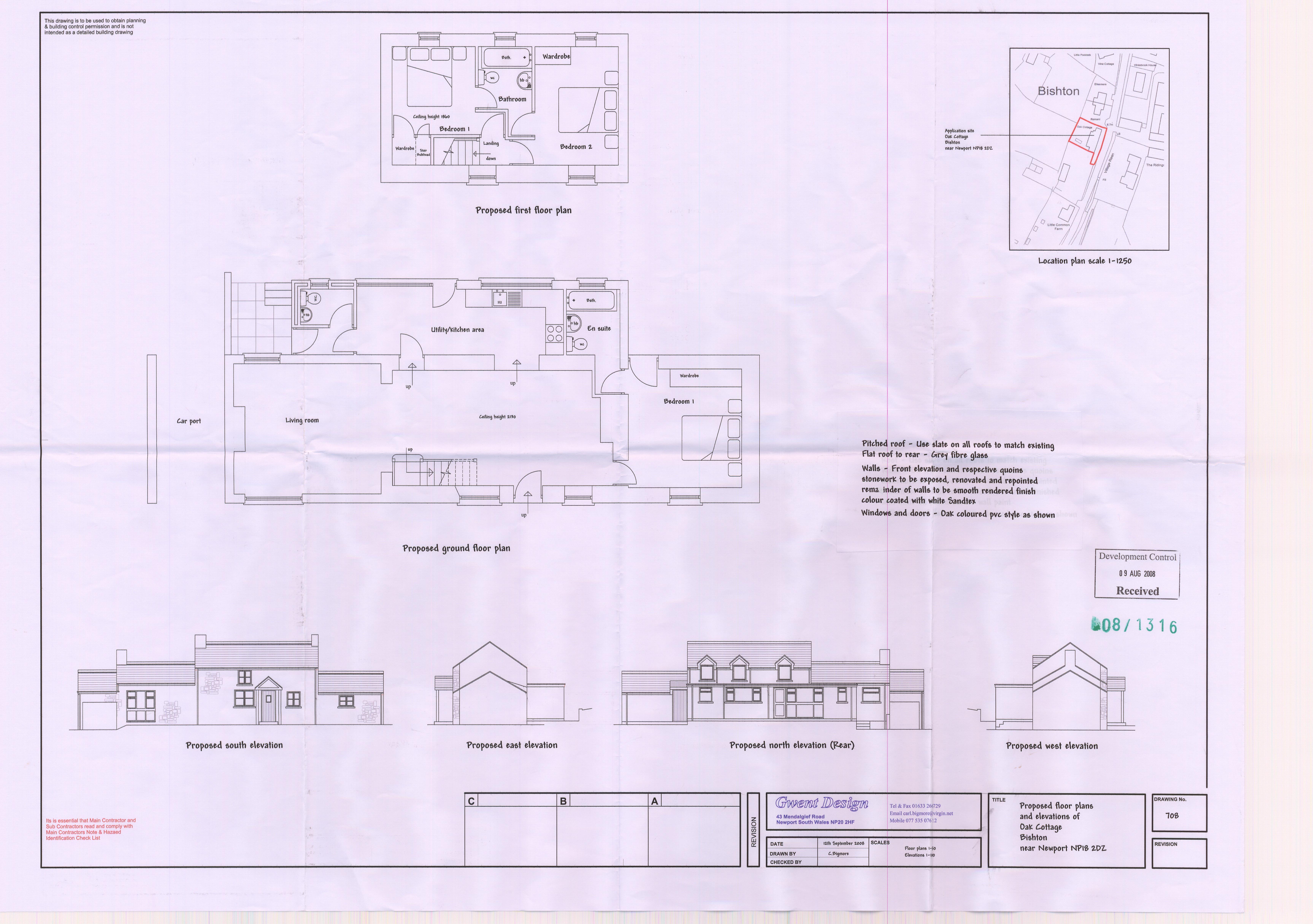
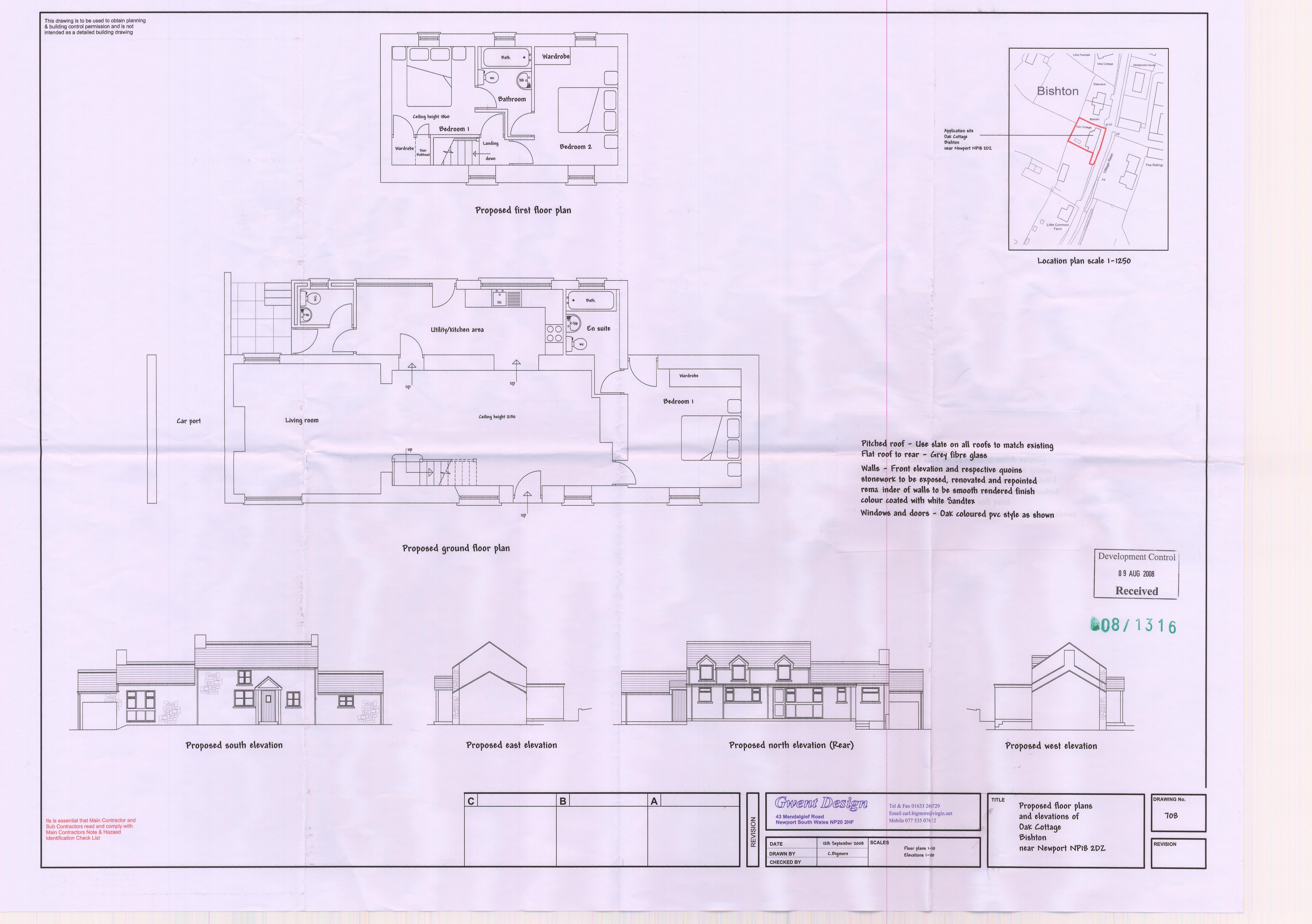
There is potential to transform the property into a traditional 3 bedroom cottage with living, dining and kitchen areas. In addition, planning permission was previously granted to demolish and rebuild a brand new detached dwelling on the site of approximately 3000 sq feet with 3/4 ensuite bedrooms, formal lounge, family room, study, dining room, kitchen and utility. Also, with a second flight of stairs leading to a very large loft area with skylights. The permission has now expired but could be applied for by the winning bidders who are advised to seek their own independent advice from local planning authorities.

Included in the photos is a proposed architect drawing of 2 semi detached properties on the site, planning has not been applied for, the image is just for illustration.

The site benefits from all mains supply (water, electricity and drainage) & LPG gas.

This quaint village of Bishton is approximately 3 miles from the Celtic Manor Hotel & Golf club, with fantastic links to the M4 & M49 the property is located between Llanwern and Magor. Less than a ten-minute drive into the nearby Magor Village, you will find several pubs, restaurants, local shops, and convenience stores. The property offers easy commuting to Bristol and London via the M4.

Tenure

Freehold

Occupancy

Vacant posession upon completion

Costs

Auction Details

The sale of this property will take place on the stated date by way of Live streamed auction and is being sold under the Unconditional sale type.

Binding contracts will be exchanged at the point of sale.

All sales are subject to our Common Auction Conditions and Bidder Terms. Properties located in Scotland and Northern Ireland will be subject to applicable local laws.

Auction Deposit and Fees

The following deposits and non- refundable auctioneers fees apply:

• 5% deposit (subject to a minimum of £5,000)

• Buyer’s Fee of 4.8% of the purchase price (subject to a minimum of £6,000 inc. VAT)

There may be additional fees listed in the Special Conditions of Sale, which will be available to view within the Legal Pack. You must read the Legal Pack carefully before bidding.

Additional Information

For full details about our auction processes, please refer to the Bidder Terms which can be viewed on our home page.

This explains the types of auction and sale methods we offer, the bidding registration process, your payment obligations, and how to view the Legal Pack (and any applicable home report for residential Scottish properties).

Guide Price & Reserve Price

Each property sold is subject to a Reserve Price. The Reserve Price will be within + or - 10% of the Guide Price. The Guide Price is issued solely as a guide so that a buyer can consider whether or not to pursue their interest. A full definition can be found within the Buyers Terms. 

Address

Oak Cottage, Bishton Road, Bishton, Newport NP18 2DZ

Guide Price

£180,000+

Key Features

  • Oak Cottage offers a substantial development opportunity
  • Original Stone Built Cottage built 1864 on a 500 SQ M level site overlooking meadows
  • Previous PP to demolish & build a 3/4 ensuite bedroom property of 3,000 SQ FT
  • Site benefits from mains water, drainage, electricity and LPG Gas
  • Detached property previously marketed in excess of £300k
  • Located in Bishton village and with neighbouring properties F/S for £1m
  • Sought after location with a wide range of local amenities and transport links close by

Our Nearest Office:

Bristol
Share this Property:
Background graphic

Looking To Finance A Purchase?

Short-Term Auction Finance.

Find out more

Looking to Sell Property or Land?

Click for a free appraisal

Free Appraisal

You may also like

278

Sold Prior to Auction
40 Newbridge Lane, Stockport, Cheshire SK1 2NA
40 Newbridge Lane, Stockport, Cheshire SK1 2NA

Sold Prior to Auction

View Listing

286

Withdrawn post auction
Flat 408, Pembroke Studios, Lower Gill Street, Liverpool, Merseyside L3 5BB
Flat 408, Pembroke Studios, Lower Gill Street, Liverpool, Merseyside L3 5BB
Property Saviour

Guide Price: £18,500+

View Listing

273

Sold at auction
Room 12, St. Anns Lodge, St. Anns Lane, Leeds LS4 2SJ
Room 12, St. Anns Lodge, St. Anns Lane, Leeds LS4 2SJ

Sold for £6,000

View Listing

450+ Strong Team

Local knowledge
national coverage

Our reach covers the UK with a network of over 30 UK offices.
Find the right professional using the below dropdowns.

Our Properties for Auction
Auction and guide block_Our auctions_2

Our Auctions

Explore our upcoming auctions and discover a wide range of properties and assets. With expert support and transparent bidding, you can find opportunities that match your goals, whether buying or selling.

Our Properties for Auction
Register for Auction Alerts
Auction and guide block_auction alerts_2

Auction Alerts

Stay up to date with all our latest auctions. Sign up for tailored alerts and receive notifications when new properties go live, so you’re ready to bid.

Register for Auction Alerts
Our Guide to Buying at Auction
Auction and guide block_guide to buying_2

Guide to buying

From first-time buyers to experienced investors, our Guide to Buying gives practical tips and advice on the auction process, researching lots, and bidding confidently to secure the best opportunities.

Our Guide to Buying at Auction
Our Guide to Selling at Auction
Auction and guide block_guide to selling_2

Guide to selling

Planning to sell at auction? Our Guide to Selling shows you how to prepare your property, set the right pricing strategy, and work with our team to achieve the best results — smoothly and successfully.

Our Guide to Selling at Auction

This site uses cookies to monitor site performance and provide a more responsive and personalised experience. You must agree to our use of certain cookies. For more information on how we use and manage cookies, please read our Privacy Policy.