Back to Results

072

Land Bound By, Earl St, Bethel St & Taylor St, Heywood, Lancashire OL10 1HT

Auction Date: 17/12/2025 9am

Property Type

Land

Tenure

Leasehold

Occupancy

Vacant posession upon completion

Description

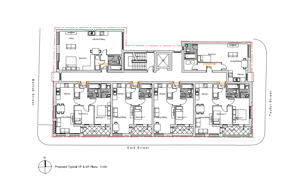
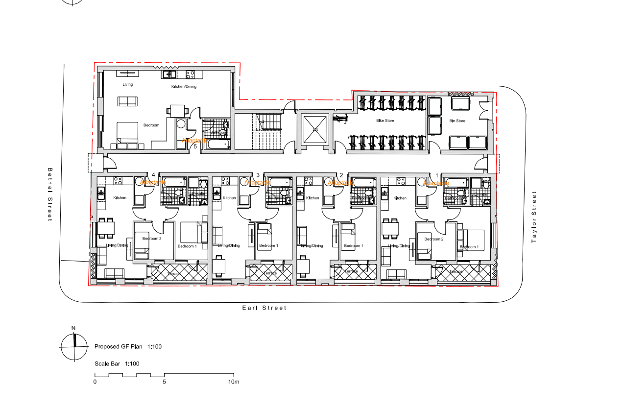
A development site with full planning permission for twenty three apartments.

The site is situated to the rear of Market Street in Heywood and bound by Earl Street, Bethel Street and Taylor Street. There is an abundance of local amenities on the door step including, shops, bars, restaurants and excellent transport links to Bury, Rochdale, Middleton and Manchester.

Full planning has been granted for twenty three apartments in a modern, four storey building. Planning Ref - Rochdale Council 23/00727/FUL.

Eight x Two Bedroom Apartments.
Eight x One Bedroom Apartments.
Seven x Studio Apartments.

A great development opportunity in popular and convenient location or as a potential build to rent.

Gross Internal Accommodation of 1162 sqm.

Accommodation

Draft Sales Details
These sales details are awaiting vendor approval.

Leasehold Information
Any ground rent and service charge review periods will be confirmed in the lease documents within the legal pack.

Note to Buyers
We have not been provided with the freeholders title documents, we have been advised by the sellers solicitor&apos

s there is no freehold registered. Prospective buyers are advised to make all necessary independent enquiries prior to placing their bid as this will be binding.

Note
Please be advised that the auctioneers have not personally inspected the property. Prospective buyers are advised to make a viewing enquiry and any other necessary independent enquiries before placing their bid, as this will be binding.

Tenure

Leasehold

Occupancy

Vacant posession upon completion

Costs

Auction Details:

The sale of this property will take place on the stated date by way of Auction Event and is being sold under an Unconditional sale type.

Binding contracts of sale will be exchanged at the point of sale.

All sales are subject to SDL Property Auctions Buyers Terms. Properties located in Scotland will be subject to applicable Scottish law.

Auction Deposit and Fees:

The following deposits and non- refundable auctioneers fees apply:

• 5% deposit (subject to a minimum of £5,000)

• Buyers Fee of 4.8% of the purchase price (subject to a minimum of £6,000 inc. VAT). 

The Buyers Fee does not contribute to the purchase price, however it will be taken into account when calculating the Stamp Duty Land Tax for the property (known as Land and Buildings Transaction Tax for properties located in Scotland), because it forms part of the chargeable consideration for the property.

There may be additional fees listed in the Special Conditions of Sale, which will be available to view within the Legal Pack. You must read the Legal Pack carefully before bidding.

Additional Information:

For full details about all auction methods and sale types please refer to the Auction Conduct Guide which can be viewed on the SDL Property Auctions home page.

This guide includes details on the auction registration process, your payment obligations and how to view the Legal Pack (and any applicable Home Report for residential Scottish properties).

Guide Price & Reserve Price:

Each property sold is subject to a Reserve Price. The Reserve Price will be within + or - 10% of the Guide Price. The Guide Price is issued solely as a guide so that a buyer can consider whether or not to pursue their interest. A full definition can be found within the Buyers Terms.

Address

Land Bound By, Earl St, Bethel St & Taylor St, Heywood, Lancashire OL10 1HT

Available

Aubrey Lee & Co

Key Features

  • Development Site
  • Planning for Twenty Three Apartments
  • Modern Four Storey Building
  • Town Centre Location
  • Excellent Transport Links
  • EPC Rating: Exempt

Our Nearest Office:

Manchester
Share this Property:
Background graphic

Looking To Finance A Purchase?

Short-Term Auction Finance.

Find out more

Looking to Sell Property or Land?

Click for a free appraisal

Free Appraisal

You may also like

001

Sold at auction
Land and Former Public Conveniences, Ilam Road, Ilam Lane, Thorpe, Ashbourne DE6 2AW
Land and Former Public Conveniences, Ilam Road, Ilam Lane, Thorpe, Ashbourne DE6 2AW
Derbyshire Dales District Council

Sold for £148,000

View Listing

002

Sold at auction
1 Chapel Lane & 23 Wartnaby Road, AB Kettleby, Melton Mowbray, Leicestershire LE14 3HS
1 Chapel Lane & 23 Wartnaby Road, AB Kettleby, Melton Mowbray, Leicestershire LE14 3HS
Shouler & Son

Sold for £289,500

View Listing

003

Sold at auction
70 Beech Avenue, Alvaston, Derby DE24 0DZ
70 Beech Avenue, Alvaston, Derby DE24 0DZ
Hannells - Alvaston

Sold for £143,500

View Listing

450+ Strong Team

Local knowledge
national coverage

Our reach covers the UK with a network of over 30 UK offices.
Find the right professional using the below dropdowns.

Our Properties for Auction
Auction and guide block_Our auctions_2

Our Auctions

Explore our upcoming auctions and discover a wide range of properties and assets. With expert support and transparent bidding, you can find opportunities that match your goals, whether buying or selling.

Our Properties for Auction
Register for Auction Alerts
Auction and guide block_auction alerts_2

Auction Alerts

Stay up to date with all our latest auctions. Sign up for tailored alerts and receive notifications when new properties go live, so you’re ready to bid.

Register for Auction Alerts
Our Guide to Buying at Auction
Auction and guide block_guide to buying_2

Guide to buying

From first-time buyers to experienced investors, our Guide to Buying gives practical tips and advice on the auction process, researching lots, and bidding confidently to secure the best opportunities.

Our Guide to Buying at Auction
Our Guide to Selling at Auction
Auction and guide block_guide to selling_2

Guide to selling

Planning to sell at auction? Our Guide to Selling shows you how to prepare your property, set the right pricing strategy, and work with our team to achieve the best results — smoothly and successfully.

Our Guide to Selling at Auction

This site uses cookies to monitor site performance and provide a more responsive and personalised experience. You must agree to our use of certain cookies. For more information on how we use and manage cookies, please read our Privacy Policy.