Back to Results

196

27 St. Thomas Road, London N4 2QH

Auction Date: 29/01/2026 9am

Property Type

Terraced House

Tenure

Freehold

Occupancy

Vacant posession upon completion

Description

A fantastic opportunity to purchase a freehold 5 bedroom, Victorian mid terrace period property, requiring refurbishment with scope to add significant value once renovated. Nestled on one of the most sought after roads in Finsbury Park and close to Finsbury Park station on the Victoria Line.

This property is currently split over 4 floors with the lower ground floor having a 1 bedroom apartment with its own front door and rear door giving access to the garden, the remaining 3 floors house the 4 bedroom maisonette which could have in the past provided HMO accommodation.

There is further scope to potentially develop the property in to apartments STPP.

Located in an enviable and extremely popular residential location the property has a wide range of local amenities close by, high st shops, bars, restaurants and excellent transport links.

Viewing is highly recommended and available to fully appreciate the outstanding opportunity on offer. A virtual tour is available.

Accommodation

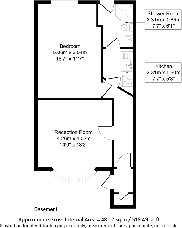
Lower Ground Floor Apartment
Entrance hall with own front and rear door. Lounge 14ft x 13ft 2. Bedroom 16ft 7 x 11ft 7. Kitchen 7ft 7 x 5ft 3. Shower room 7ft 7 x 6ft 1.

Upper Ground Floor Maisonette
Entrance Hall with own front and rear door. Lounge 14ft 8 x 13ft 4. Dining Room 10ft 11 x 10ft 8. Kitchen 11ft 3 x 4ft 8. WC 4ft x 2ft 4.

First Floor
Bedroom 17ft 2 x 12ft 7. Bedroom 11ft 8 x 11ft 7. Shower room 5ft 5 x 4ft 5.

Second Floor
Bedroom 17ft 3 x 12ft 4. Bedroom 11ft 10 x 11ft 5.

Note
At some time between 03.10.2025 and 13.10.2025, 27 St Thomas’s Road, Islington N4 2QH (the Property) was accessed by persons unknown and their actions constituted a trespass. The trespass was identified on 13.10.2025. The trespass was addressed by the police, the Property was secured, and the trespassers removed. The damage caused to the window and doors of the Property which allowed the trespassers to access the Property, has been remedied. Since 13.10.2025, there is no evidence of further trespass at the Property.

Note
Japanese Knotweed has been noted at the Property and a copy of the Report is enclosed as part of the legal pack.

Draft Sales Details
These sales details are awaiting vendor approval.

Tenure

Freehold

Occupancy

Vacant posession upon completion

Costs

Auction Details:

The sale of this property will take place on the stated date by way of Auction Event and is being sold under an Unconditional sale type.

Binding contracts of sale will be exchanged at the point of sale.

All sales are subject to SDL Property Auctions Buyers Terms. Properties located in Scotland will be subject to applicable Scottish law.

Auction Deposit and Fees:

The following deposits and non- refundable auctioneers fees apply:

• 5% deposit (subject to a minimum of £5,000)

• Buyers Fee of 2.4% inc vat of the purchase price

The Buyers Fee does not contribute to the purchase price, however it will be taken into account when calculating the Stamp Duty Land Tax for the property (known as Land and Buildings Transaction Tax for properties located in Scotland), because it forms part of the chargeable consideration for the property.

There may be additional fees listed in the Special Conditions of Sale, which will be available to view within the Legal Pack. You must read the Legal Pack carefully before bidding.

Additional Information:

For full details about all auction methods and sale types please refer to the Auction Conduct Guide which can be viewed on the SDL Property Auctions home page.

This guide includes details on the auction registration process, your payment obligations and how to view the Legal Pack (and any applicable Home Report for residential Scottish properties).

Guide Price & Reserve Price:

Each property sold is subject to a Reserve Price. The Reserve Price will be within + or - 10% of the Guide Price. The Guide Price is issued solely as a guide so that a buyer can consider whether or not to pursue their interest. A full definition can be found within the Buyers Terms.

Address

27 St. Thomas Road, London N4 2QH

Sold for £1,180,000

Key Features

  • Council Tax Band: DELETED
  • Freehold Mid-Terrace Character Property
  • Lower Ground floor 1 Bed Apartment
  • 4 Bed Maisonette over 3 floors
  • Potential to split into flats (STPP)
  • Potential to add significant value once renovated
  • Rear Garden
  • Exceptional Location in North London - 0.1 mile from Finsbury Park Station (Victoria Line)
  • EPC Rating: D

Our Nearest Office:

London
Share this Property:
Background graphic

Looking To Finance A Purchase?

Short-Term Auction Finance.

Find out more

Looking to Sell Property or Land?

Click for a free appraisal

Free Appraisal

You may also like

022

Sold at auction
12 St. Aidans Way, Sheffield S2 2NF
12 St. Aidans Way, Sheffield S2 2NF

Sold for £127,000

View Listing

001

Sold at auction
Spencers Farm, Feltwell Road, Southery, Downham Market PE38 0PF
Spencers Farm, Feltwell Road, Southery, Downham Market PE38 0PF

Sold for £167,000

View Listing

002

Postponed
Gospel Hall, Caledonian Road, New Bradwell, Milton Keynes MK13 0AP
Gospel Hall, Caledonian Road, New Bradwell, Milton Keynes MK13 0AP

Guide Price: £30,000

View Listing

450+ Strong Team

Local knowledge
national coverage

Our reach covers the UK with a network of over 30 UK offices.
Find the right professional using the below dropdowns.

Our Properties for Auction
Auction and guide block_Our auctions_2

Our Auctions

Explore our upcoming auctions and discover a wide range of properties and assets. With expert support and transparent bidding, you can find opportunities that match your goals, whether buying or selling.

Our Properties for Auction
Register for Auction Alerts
Auction and guide block_auction alerts_2

Auction Alerts

Stay up to date with all our latest auctions. Sign up for tailored alerts and receive notifications when new properties go live, so you’re ready to bid.

Register for Auction Alerts
Our Guide to Buying at Auction
Auction and guide block_guide to buying_2

Guide to buying

From first-time buyers to experienced investors, our Guide to Buying gives practical tips and advice on the auction process, researching lots, and bidding confidently to secure the best opportunities.

Our Guide to Buying at Auction
Our Guide to Selling at Auction
Auction and guide block_guide to selling_2

Guide to selling

Planning to sell at auction? Our Guide to Selling shows you how to prepare your property, set the right pricing strategy, and work with our team to achieve the best results — smoothly and successfully.

Our Guide to Selling at Auction

This site uses cookies to monitor site performance and provide a more responsive and personalised experience. You must agree to our use of certain cookies. For more information on how we use and manage cookies, please read our Privacy Policy.