Back to Results

255

1 & 1A Waterloo Road, Stoke-On-Trent, Staffordshire ST6 2EH

Auction Date: 26/03/2026 9am

Description

A freehold large and prominently located three storey property of brick elevations with a pitched tiled roof which was comprehensively refurbished in 2012 as part of the
Burslem Improvement Grant Scheme.

The property has previously been used for both retail and office use, although lends itself to be converted into a HMO or similar with the potential for 5 rooms or 6 if the shop is also converted. Internally the property has gas central heating and single glazed timber windows. All rooms are carpeted and very little work is required internally. According to the council some sound installation, a fire alarm system and an additional landing on the top floor would be required for planning to be considered for a HMO.

LOCATION
The property is located towards the top of Waterloo Road at the junction with Nile Street and opposite the George Hotel and Swan Square. Burslem is ideally located off the A500 within easy reach of junctions 15 and 16 of the M6 motorway.

SERVICES
All main services are connected. No services have been tested by the agents.

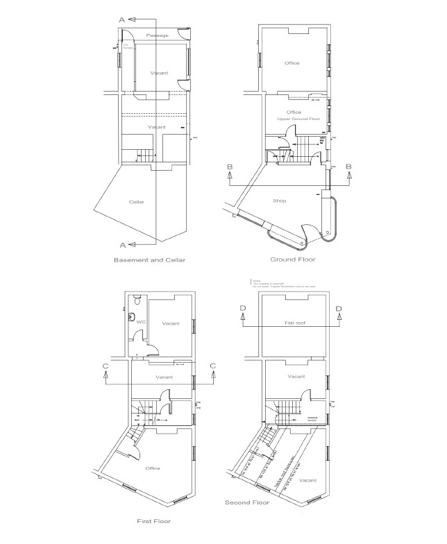
ACCOMMODATION

Shop Ground floor
Sales area 307 sq ft
Lower Ground
Back office 127 sq ft
Kitchen 118 sq ft
WC --
NIA 552 sq ft

Main Property
Ground floor
Room 1 141 sq ft
Room 2 212 sq ft
First floor
Room 1 267 sq ft
Room 2 156 sq ft
Room 3 237 sq ft
WC

Second floor
Room 1 179 sq ft
Room 2 288 sq ft
NIA 1,480 sq ft
Total NIA 2,032 sq ft

Interested parties are advised to inspect the legal pack for more information.

Tenure

Freehold

Occupancy

Vacant posession upon completion

Costs

Auction Details

The sale of this property will take place on the stated date by way of Live streamed auction and is being sold under the Unconditional sale type.

Binding contracts will be exchanged at the point of sale.

All sales are subject to our Common Auction Conditions and Bidder Terms. Properties located in Scotland and Northern Ireland will be subject to applicable local laws.

Auction Deposit and Fees

The following deposits and non- refundable auctioneers fees apply:

• 5% deposit (subject to a minimum of £5,000)

• Buyers Fee of 4.8% of the purchase price (subject to a minimum of £6,000 inc. VAT). 

There may be additional fees listed in the Special Conditions of Sale, which will be available to view within the Legal Pack. You must read the Legal Pack carefully before bidding.

Additional Information

For full details about our auction processes, please refer to the Bidder Terms which can be viewed on our home page.

This explains the types of auction and sale methods we offer, the bidding registration process, your payment obligations, and how to view the Legal Pack (and any applicable home report for residential Scottish properties).

Guide Price & Reserve Price

Each property sold is subject to a Reserve Price. The Reserve Price will be within + or - 10% of the Guide Price. The Guide Price is issued solely as a guide so that a buyer can consider whether or not to pursue their interest. A full definition can be found within the Buyers Terms. 

General

Note
Please be advised that the auctioneers have not personally inspected the property. Prospective buyers are advised to make a viewing enquiry and any other necessary independent enquiries before placing their bid, as this will be binding.

Draft Sales Particulars
These sales details are awaiting vendor approval

Address

1 & 1A Waterloo Road, Stoke-On-Trent, Staffordshire ST6 2EH

Guide Price

£120,000+

Rory Mack - Stoke

Key Features

  • Retail/office premises suitable for conversion to HMO or assisted living
  • Total NIA: 2,032 sq ft including lower ground plus cellar space
  • Located in the centre of Burslem close to all amenities
  • EPC Rating: G

Our Nearest Office:

Manchester
Share this Property:
Background graphic

Looking To Finance A Purchase?

Short-Term Auction Finance.

Find out more

Looking to Sell Property or Land?

Click for a free appraisal

Free Appraisal

You may also like

278

Live Stream Auction
40 Newbridge Lane, Stockport, Cheshire SK1 2NA
40 Newbridge Lane, Stockport, Cheshire SK1 2NA

Guide Price: £350,000+

View Listing

286

Live Stream Auction
Flat 408, Pembroke Studios, Lower Gill Street, Liverpool, Merseyside L3 5BB
Flat 408, Pembroke Studios, Lower Gill Street, Liverpool, Merseyside L3 5BB
Property Saviour

Guide Price: £18,500+

View Listing

273

Live Stream Auction
Room 12, St. Anns Lodge, St. Anns Lane, Leeds LS4 2SJ
Room 12, St. Anns Lodge, St. Anns Lane, Leeds LS4 2SJ

Guide Price: £6,000+

View Listing

450+ Strong Team

Local knowledge
national coverage

Our reach covers the UK with a network of over 30 UK offices.
Find the right professional using the below dropdowns.

Our Properties for Auction
Auction and guide block_Our auctions_2

Our Auctions

Explore our upcoming auctions and discover a wide range of properties and assets. With expert support and transparent bidding, you can find opportunities that match your goals, whether buying or selling.

Our Properties for Auction
Register for Auction Alerts
Auction and guide block_auction alerts_2

Auction Alerts

Stay up to date with all our latest auctions. Sign up for tailored alerts and receive notifications when new properties go live, so you’re ready to bid.

Register for Auction Alerts
Our Guide to Buying at Auction
Auction and guide block_guide to buying_2

Guide to buying

From first-time buyers to experienced investors, our Guide to Buying gives practical tips and advice on the auction process, researching lots, and bidding confidently to secure the best opportunities.

Our Guide to Buying at Auction
Our Guide to Selling at Auction
Auction and guide block_guide to selling_2

Guide to selling

Planning to sell at auction? Our Guide to Selling shows you how to prepare your property, set the right pricing strategy, and work with our team to achieve the best results — smoothly and successfully.

Our Guide to Selling at Auction

This site uses cookies to monitor site performance and provide a more responsive and personalised experience. You must agree to our use of certain cookies. For more information on how we use and manage cookies, please read our Privacy Policy.