Back to Results

69 Riddings Street, Derby, Derbyshire DE22 3UT

Auction Date: 26/03/2026 9am

Description

An excellent freehold residential investment opportunity to acquire a large than average, two double bedroomed mid terraced property with vacant possession, enjoying a strong letting location close to the Derby city centre, requiring a scheme of improvement and modernisation.

Benefitting from gas central heating, the accommodation in brief comprises: Entrance Hall with period style Minton tile flooring; good sized lounge; separate dining room; kitchen to the rear with access to the garden space and the useful cellar store; first floor landing; two generous double bedrooms, one of which has been partitioned and a fitted first floor bathroom.

To the rear of the property is an enclosed courtyard style garden space with brick-built outhouse.

Riddings Street is conveniently located for local amenities, including shops and schools, as well as excellent road and public transport access to Derby City Centre and derby Royal Hospital. A viewing is essential to appreciate the potential and position of the accommodation on offer.

Accommodation

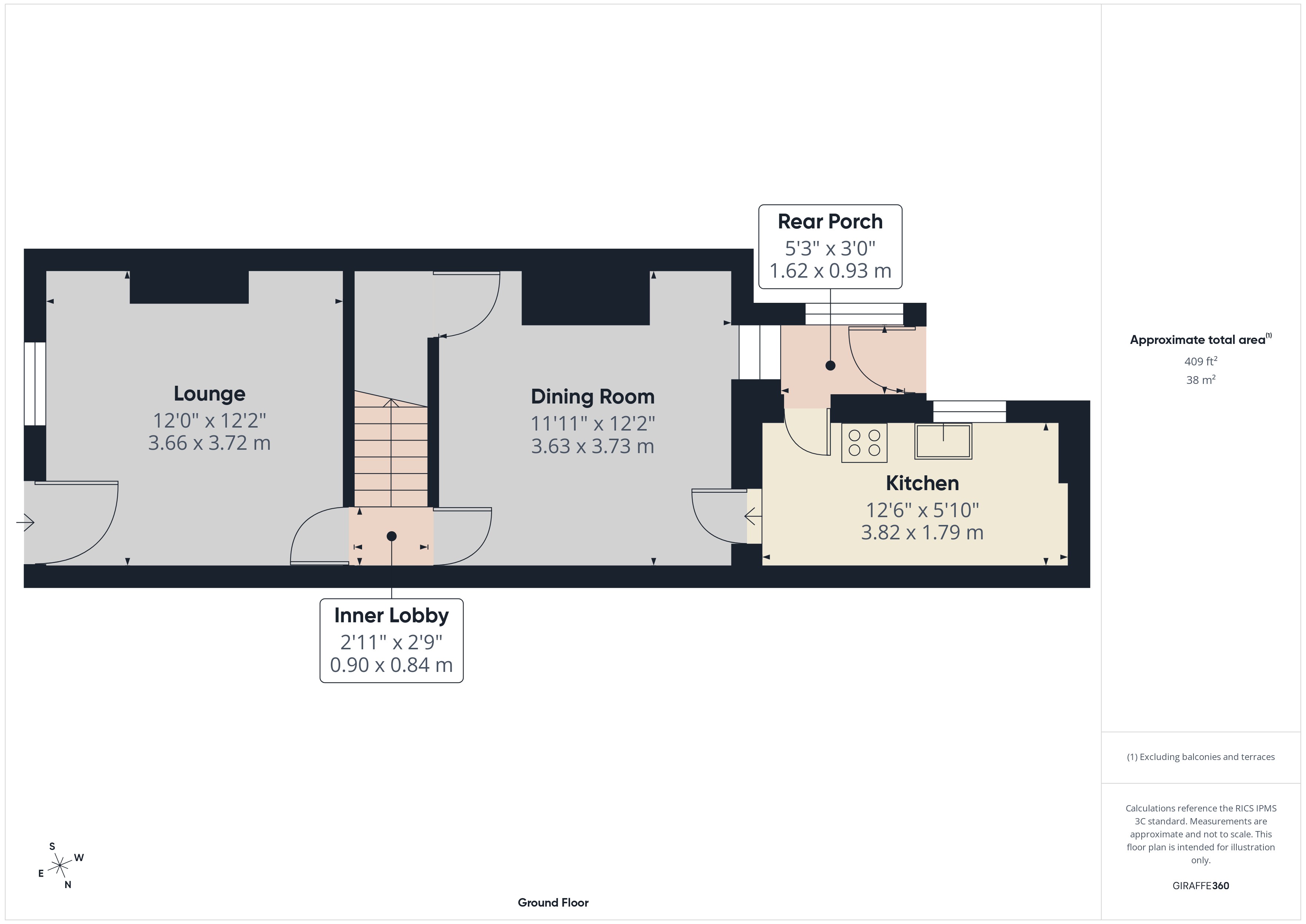
Entrance Hall

Lounge
3.89m x 3.00m (12ft 9 x 9ft 10)

Dining Room
3.89m x 3.10m (12ft 9 x 10ft 2)

Kitchen
2.67m x 2.36m (8ft 9 x 7ft 9)

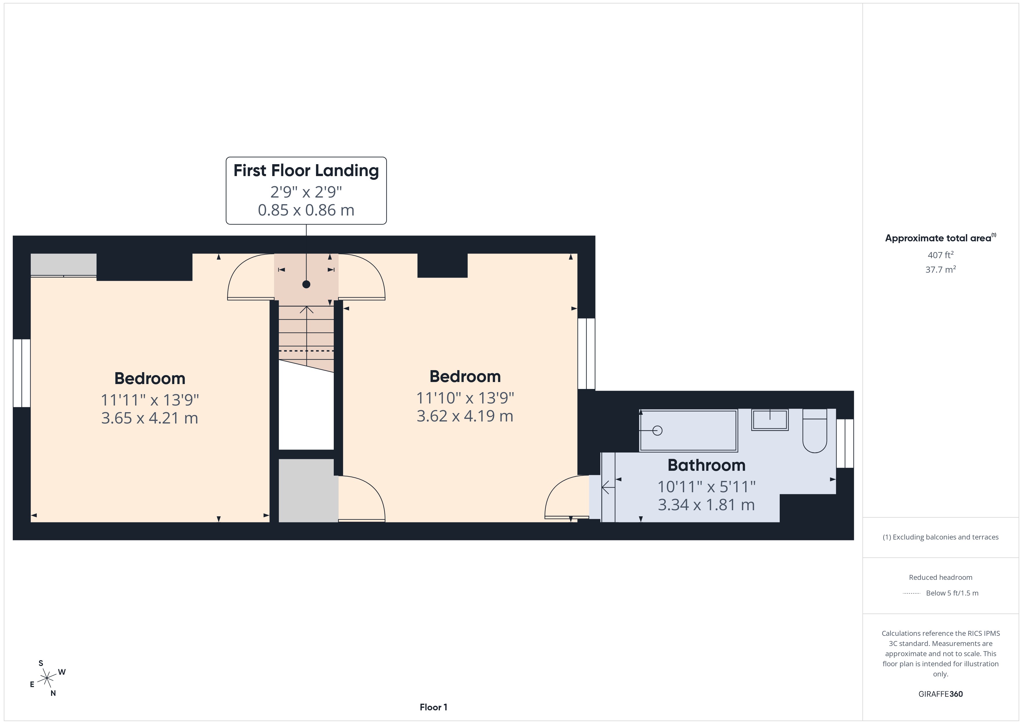
First Floor Landing

Bedroom One
3.94m x 3.33m (12ft 11 x 10ft 11)

Bedroom Two (A)
3.86m x 3.17m (12ft 8 x 10ft 5)

Bedroom Two (B)
3.86m x 1.88m (12ft 8 x 6ft 2)

Bathroom
2.67m x 2.36m (8ft 9 x 7ft 9)

Tenure

Freehold

Occupancy

Vacant posession upon completion

Costs

Auction Details

The sale of this property will take place on the stated date by way of Live streamed auction and is being sold under the Unconditional sale type.

Binding contracts will be exchanged at the point of sale.

All sales are subject to our Common Auction Conditions and Bidder Terms. Properties located in Scotland and Northern Ireland will be subject to applicable local laws.

Auction Deposit and Fees

The following deposits and non- refundable auctioneers fees apply:

• 5% deposit (subject to a minimum of £5,000)

• Buyer’s Fee of 4.8% of the purchase price (subject to a minimum of £6,000 inc. VAT)

There may be additional fees listed in the Special Conditions of Sale, which will be available to view within the Legal Pack. You must read the Legal Pack carefully before bidding.

Additional Information

For full details about our auction processes, please refer to the Bidder Terms which can be viewed on our home page.

This explains the types of auction and sale methods we offer, the bidding registration process, your payment obligations, and how to view the Legal Pack (and any applicable home report for residential Scottish properties).

Guide Price & Reserve Price

Each property sold is subject to a Reserve Price. The Reserve Price will be within + or - 10% of the Guide Price. The Guide Price is issued solely as a guide so that a buyer can consider whether or not to pursue their interest. A full definition can be found within the Buyers Terms. 

General

Note
Please be advised that whilst our joint agent has conducted an inspection, the auctioneers have not personally inspected the property. Prospective buyers are advised to make a viewing enquiry and any other necessary independent enquiries before placing their bid, as this will be binding.

Address

69 Riddings Street, Derby, Derbyshire DE22 3UT

Guide Price

£75,000+

Hannells - Allestree

Key Features

  • Spacious two bedroomed terraced property
  • Offered for sale with vacant possession
  • Two reception rooms & separate kitchen
  • Passaged landing with first floor bathroom
  • Courtyard style rear garden
  • Scheme of improvement and upgrading required
  • Well located for the city centre and Derby University Campus
  • Excellent BTL residential investment opportunity
  • EPC Rating: Awaited

Our Nearest Office:

Derby
Share this Property:
Background graphic

Looking To Finance A Purchase?

Short-Term Auction Finance.

Find out more

Looking to Sell Property or Land?

Click for a free appraisal

Free Appraisal

You may also like

Live Stream Auction
Gospel Hall, Caledonian Road, New Bradwell, Milton Keynes MK13 0AP
Gospel Hall, Caledonian Road, New Bradwell, Milton Keynes MK13 0AP

Guide Price: £25,000 - £30,000

View Listing

Sold Prior to Auction
Land at St. Pauls Road, Seacombe CH44 7AW
Land at St. Pauls Road, Seacombe CH44 7AW

Sold Prior to Auction

View Listing

Live Stream Auction
Holmewood Industrial Estate Units, Stainsby Close, Holmewood S42 5UG
Holmewood Industrial Estate Units, Stainsby Close, Holmewood S42 5UG
Derbyshire County Council

Guide Price: £575,000+

View Listing

450+ Strong Team

Local knowledge
national coverage

Our reach covers the UK with a network of over 30 UK offices.
Find the right professional using the below dropdowns.

Our Properties for Auction
Auction and guide block_Our auctions_2

Our Auctions

Explore our upcoming auctions and discover a wide range of properties and assets. With expert support and transparent bidding, you can find opportunities that match your goals, whether buying or selling.

Our Properties for Auction
Register for Auction Alerts
Auction and guide block_auction alerts_2

Auction Alerts

Stay up to date with all our latest auctions. Sign up for tailored alerts and receive notifications when new properties go live, so you’re ready to bid.

Register for Auction Alerts
Our Guide to Buying at Auction
Auction and guide block_guide to buying_2

Guide to buying

From first-time buyers to experienced investors, our Guide to Buying gives practical tips and advice on the auction process, researching lots, and bidding confidently to secure the best opportunities.

Our Guide to Buying at Auction
Our Guide to Selling at Auction
Auction and guide block_guide to selling_2

Guide to selling

Planning to sell at auction? Our Guide to Selling shows you how to prepare your property, set the right pricing strategy, and work with our team to achieve the best results — smoothly and successfully.

Our Guide to Selling at Auction

This site uses cookies to monitor site performance and provide a more responsive and personalised experience. You must agree to our use of certain cookies. For more information on how we use and manage cookies, please read our Privacy Policy.