Back to Results

103

Northwick House (Including Flats 1, 2 & 3), Coopers Lane, Evesham WR11 1BY

Auction Date: 29/01/2026 9am

Property Type

Mixed Use

Tenure

See Legal pack

Occupancy

Vacant posession upon completion

Description

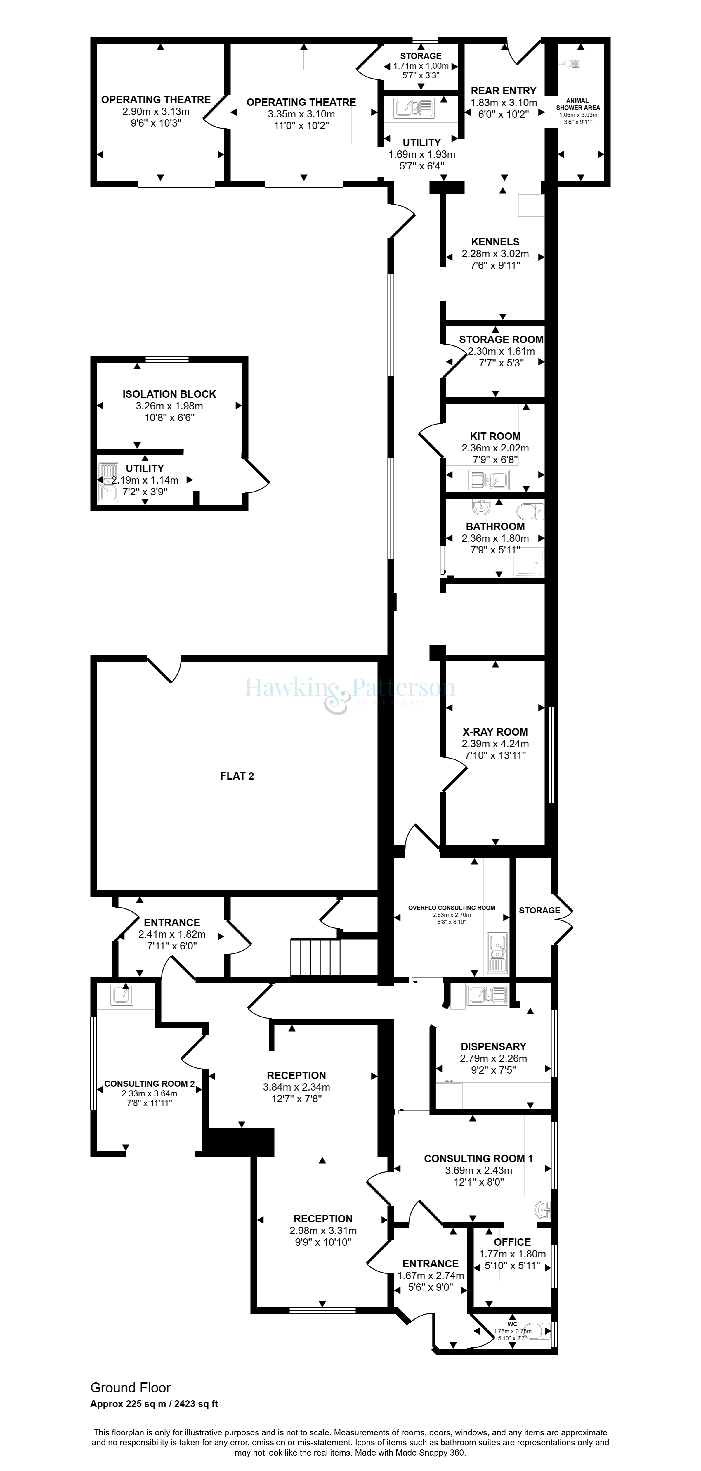
A mixed use property occupying a generous plot in an enviable central Evesham location, this substantial mixed-use property offers over 3,000 Sq. Ft of accommodation. The site comprises a detached commercial building previously operating as a veterinary practice (Use Class E), alongside three residential maisonettes.

The property will be offered with vacant possession upon completion.

Externally, the property benefits from two separate car parking areas and sits on a circa 0.19 acre plot, presenting excellent potential for investors or future development, subject to the necessary planning permissions.

Coopers Lane is located just off Waterside in a prime residential area of Evesham, characterised by a mix of apartments, detached houses and a nearby hotel. All main services are connected, and the property benefits from ample off-road parking.

The property was previously operating as a veterinary surgery with 3 residential apartments (2 x one bedroom and 1 x two bedroom). The site extends to approximately 0.19 acres and offers potential for redevelopment, subject to the necessary planning consents.

COMMERCIAL PROPERTY

Entrance Hall
Wall-mounted consumer unit, meter point and doors leading to the main accommodation.

Guest WC
WC, water meter, ceiling light and opaque glazed window.

Waiting room/Reception Area
Panelled radiator, light and power points, BT point and opaque glazed front window.

Consulting Room One
Wash basin, panelled radiator, ceiling lights, power points and opaque glazed windows.

Consulting Room Two
Opaque glazed window, hand wash basin, light and power points and BT extension points.

Dispensary
Fitted units, stainless steel sink, light and power points, BT extension point and opaque glazed window.

Inner Hall
Panelled radiator.

Consulting Room Three
Fitted with stainless steel sink unit, storage cupboards, light and power points, and wall-mounted thermostatic control for central heating.

Inner Corridor
Panelled radiators, side elevation windows, ceiling lights and plumbing for an automatic washing machine. Push-door fire escape leads to the inner yard.

X-Ray Room
High-level window, extractor fan, and light and power connected.

Bathroom
Pedestal wash basin, low-level WC, shower cubicle with plumbed shower, extractor fan, ceiling light and panelled radiator.

Kit Room
Stainless steel sink unit, fitted storage, Heatstore electric heater and light and power.

Cattery
Panelled radiator and light and power.

Kennels
Light and power, opening into the grooming area with rear access door, stainless steel sink with hot water heater, tiled surrounds, wall-mounted storage, light and power and panelled radiator.

Animal Shower Area
Ceramic tiled floor and walls, electric shower, extractor fan and ceiling lights.

Operating Theatre One
Stainless steel sink, storage cupboards, wall-mounted units, panelled radiator, light and power, and double glazed window with venetian blind.

Operating Theatre Two
Panelled radiator and ceiling light.

RESIDENTIAL FLATS

Flat One (First Floor)
Ground floor entrance form the side leading into a hallway with stairs to the first floor.

First Floor Landing
Pendant light and airing cupboard housing lagged hot water tank.

Lounge
Dual aspect double glazed windows, light and power points.

Kitchen/Breakfast Room
Fitted units, stainless steel sink, cooker point, electric heater, wall-mounted cupboards, light and power points and dual aspect windows.

Separate WC
WC, wash basin, opaque glazed window and ceiling light.

Bedroom One
Fitted wardrobes, front elevation double glazed window, pendant light and power points.

Bedroom Two
Built-in wardrobe, rear elevation window, light and power points.

Flat Two (Ground Floor, Rear Court Yard Access)

Entrance Hall

Open Plan Kitchen/Living Room
Fitted kitchen base, wall and drawer units, electric hob and oven, extractor hood, double glazed rear window, ceiling fan, wall lights, ornamental fireplace and electric heater.

Bathroom
Panelled bath, Mira electric shower, low-level WC, pedestal wash basin, opaque glazed window, extractor fan, ceiling light and electric heater.

Bedroom
Side elevation window, airing cupboard with immersion heater, electric heater, pendant light and power points.

Flat Three (First Floor)
Accessed via gated side entrance with steps leading to a timber front door into;

Hall
With roof light, panelled radiators, ceiling light and consumer unit.

Lounge
Double glazed window to front, panelled radiator, BT point, light and power.

Bathroom
Panelled bath, electric shower, low-level WC, pedestal wash basin, roof light window and ceiling light.

Kitchen
Worcester gas boiler, stainless steel sink, plumbing for washing machine, space for cooker and freezer, base units and tiled surrounds.

Bedroom
Double glazed window to rear, panelled radiator, pendant light and power points.

Outside
To the front, the property provides off-road parking from Coopers Lane. Side access leads to the boiler room serving the veterinary surgery.

There is vehicular gated access to an inner courtyard measuring approximately 30 x 30 ft, with external lighting.

Isolation Block
Light, power, stainless steel sink and hot water heater.

Beyond this is a further rear garden area measuring approximately 44 x 47 ft (13.41m x 14.32m).

Accommodation

Note
Please be advised that whilst our joint agent has conducted an inspection, the auctioneers have not personally inspected the property. Prospective buyers are advised to make a viewing enquiry and any other necessary independent enquiries before placing their bid, as this will be binding.

Note to Buyers
The “Property” is Northwick House, Coopers Lane, Evesham, (WR11 1BY)
comprised of Flat 1, Northwick House, Coopers Lane, Evesham and parking space (WR11 1BY), Flat 2, Northwick House, Coopers Lane, Evesham and parking space (WR11 1BY) and Flat 3, Northwick House, Coopers Lane, Evesham and parking space (WR11 1BY).

The Property is Freehold and is registered at the Land Registry under title number HW181563 . Flat 1, Flat 2 and Flat 3 are registered at the Land Registry under the title numbers HW109381, WR99829 and HW166743.

Tenure

See Legal pack

Occupancy

Vacant posession upon completion

Costs

Auction Details:

The sale of this property will take place on the stated date by way of Auction Event and is being sold under an Unconditional sale type.

Binding contracts of sale will be exchanged at the point of sale.

All sales are subject to SDL Property Auctions Buyers Terms. Properties located in Scotland will be subject to applicable Scottish law.

Auction Deposit and Fees:

The following deposits and non- refundable auctioneers fees apply:

• 5% deposit (subject to a minimum of £5,000)

• Buyers Fee of 3.6% of the purchase price inc. VAT. 

The Buyers Fee does not contribute to the purchase price, however it will be taken into account when calculating the Stamp Duty Land Tax for the property (known as Land and Buildings Transaction Tax for properties located in Scotland), because it forms part of the chargeable consideration for the property.

There may be additional fees listed in the Special Conditions of Sale, which will be available to view within the Legal Pack. You must read the Legal Pack carefully before bidding.

Additional Information:

For full details about all auction methods and sale types please refer to the Auction Conduct Guide which can be viewed on the SDL Property Auctions home page.

This guide includes details on the auction registration process, your payment obligations and how to view the Legal Pack (and any applicable Home Report for residential Scottish properties).

Guide Price & Reserve Price:

Each property sold is subject to a Reserve Price. The Reserve Price will be within + or - 10% of the Guide Price. The Guide Price is issued solely as a guide so that a buyer can consider whether or not to pursue their interest. A full definition can be found within the Buyers Terms.

Address

Northwick House (Including Flats 1, 2 & 3), Coopers Lane, Evesham WR11 1BY

Sold for £350,000

Hawkins and Patterson - Henley-in-Arden

Key Features

  • Council Tax Band: A
  • 3,000 Sq. Ft of commercial accommodation including three consulting rooms
  • 0.19 acre plot
  • Central location near Town
  • Three residential flats
  • Excellent development opportunity (STPC)
  • Vacant Possession upon completion
  • EPC Rating: C E D D

Our Nearest Office:

Birmingham
Share this Property:
Background graphic

Looking To Finance A Purchase?

Short-Term Auction Finance.

Find out more

Looking to Sell Property or Land?

Click for a free appraisal

Free Appraisal

You may also like

022

Sold at auction
12 St. Aidans Way, Sheffield S2 2NF
12 St. Aidans Way, Sheffield S2 2NF

Sold for £127,000

View Listing

001

Sold at auction
Spencers Farm, Feltwell Road, Southery, Downham Market PE38 0PF
Spencers Farm, Feltwell Road, Southery, Downham Market PE38 0PF

Sold for £167,000

View Listing

002

Postponed
Gospel Hall, Caledonian Road, New Bradwell, Milton Keynes MK13 0AP
Gospel Hall, Caledonian Road, New Bradwell, Milton Keynes MK13 0AP

Guide Price: £30,000

View Listing

450+ Strong Team

Local knowledge
national coverage

Our reach covers the UK with a network of over 30 UK offices.
Find the right professional using the below dropdowns.

Our Properties for Auction
Auction and guide block_Our auctions_2

Our Auctions

Explore our upcoming auctions and discover a wide range of properties and assets. With expert support and transparent bidding, you can find opportunities that match your goals, whether buying or selling.

Our Properties for Auction
Register for Auction Alerts
Auction and guide block_auction alerts_2

Auction Alerts

Stay up to date with all our latest auctions. Sign up for tailored alerts and receive notifications when new properties go live, so you’re ready to bid.

Register for Auction Alerts
Our Guide to Buying at Auction
Auction and guide block_guide to buying_2

Guide to buying

From first-time buyers to experienced investors, our Guide to Buying gives practical tips and advice on the auction process, researching lots, and bidding confidently to secure the best opportunities.

Our Guide to Buying at Auction
Our Guide to Selling at Auction
Auction and guide block_guide to selling_2

Guide to selling

Planning to sell at auction? Our Guide to Selling shows you how to prepare your property, set the right pricing strategy, and work with our team to achieve the best results — smoothly and successfully.

Our Guide to Selling at Auction

This site uses cookies to monitor site performance and provide a more responsive and personalised experience. You must agree to our use of certain cookies. For more information on how we use and manage cookies, please read our Privacy Policy.