Back to Results

048

1 Wellington Road South, Stockport, Cheshire SK4 1AA

Auction Ends: 25/02/2026

Description

A redevelopment opportunity comprising a detached period brick building situated in a prime position in the centre of Stockport. The property presents as two storeys to the Wellington Road South frontage and four storeys on to Mersey Square, and benefits from planning consent for redevelopment to provide ground floor commercial accommodation with 14no. apartments to the upper floors.

Accommodation

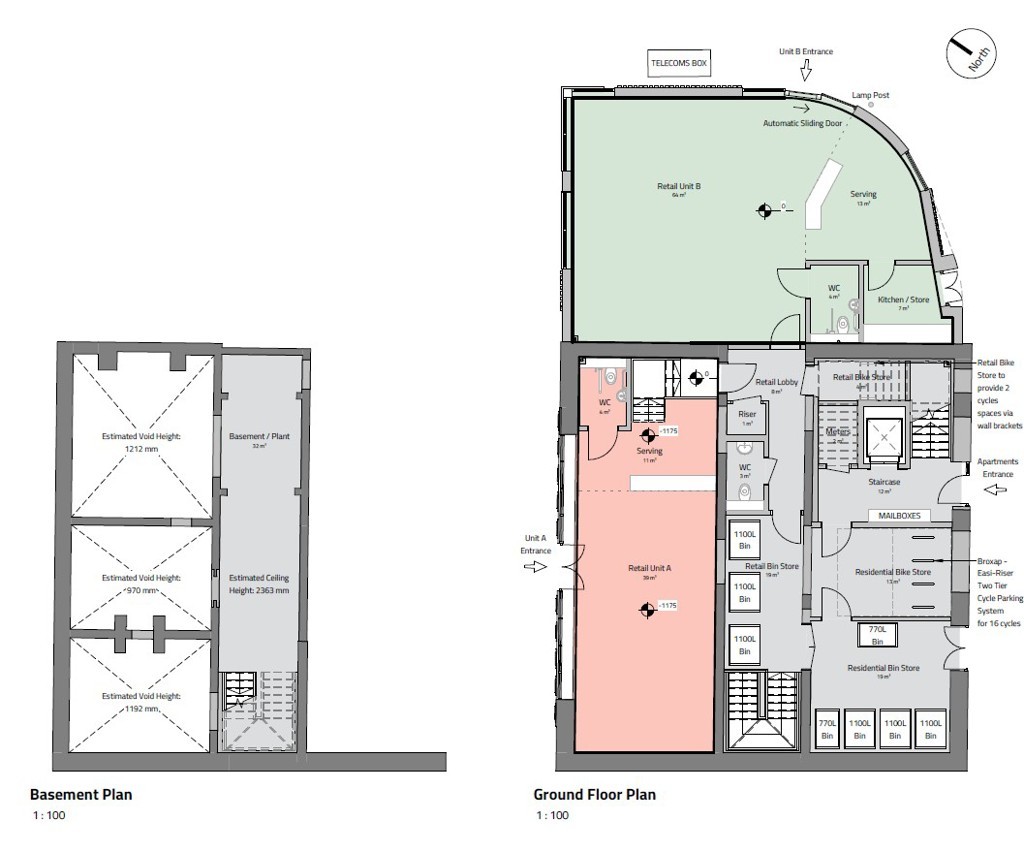
The proposed development will provide the following accommodation:

Basement
Plant Room - 32.00 Sq M - 344 Sq Ft

Ground floor
Retail Unit A - 57.00 Sq M - 614 Sq Ft Retail Unit B - 88.00 Sq M - 947 Sq Ft

First floor
Apartment 1 - 53.00 Sq M - 570 Sq Ft Apartment 2 - 40.00 Sq M - 431 Sq Ft Apartment 3 - 59.00 Sq M - 635 Sq Ft Apartment 4 - 51.00 Sq M - 549 Sq Ft

Second floor
Apartment 5 - 54.00 Sq M - 581 Sq Ft Apartment 6 - 43.00 Sq M - 463 Sq Ft Apartment 7 - 60.00 Sq M - 646 Sq Ft Apartment 8 - 51.00 Sq M - 549 Sq Ft

Third floor
Apartment 9 - 54.00 Sq M - 581 Sq Ft Apartment 10 - 43.00 Sq M - 463 Sq Ft Apartment 11 - 60.00 Sq M - 646 Sq Ft Apartment 12 - 51.00 Sq M - 549 Sq Ft

Fourth floor
Apartment 13 - 40.00 Sq M - 431 Sq Ft Apartment 14 - 47.00 Sq M - 506 Sq Ft

Site Area

Approximately 0.032 Hectares (0.08 Acres).

Planning

The property benefits from planning consent (DC/085262) for "Redevelopment of existing building, including partial demolition, to create a mixed-use commercial and residential scheme comprising of 14 apartments." For any pre-application advice, interested parties should consult directly with the Local Planning Authority: Stockport Metropolitan Borough Council, Fred Perry House, Edward Street, Stockport, SK1 3UR. Email: Planning.DC@stockport.gov.uk / Searches.DC@stockport.gov.uk

Occupancy

Vacant posession upon completion

General


1. All the information provided on our website is for indicative purposes only and interested parties should refer to the contents of the legal pack and rely upon their own due diligence as a prudent bidder.


2. PLEASE NOTE BIDDING COMMENCES ON TUESDAY 24TH FEBRUARY AND CLOSES ON WEDNESDAY 25TH FEBRUARY.


3. Details of the Buyers Premium and any additional fees payable are contained within the legal documents.

Note
Please be advised that the auctioneers have not personally inspected the property. Prospective buyers are advised to make a viewing enquiry and any other necessary independent enquiries before placing their bid, as this will be binding.

Address

1 Wellington Road South, Stockport, Cheshire SK4 1AA

Looking To
Finance A Purchase?

Short-Term Auction Finance.

  • Residential & commercial securities
  • Loans from £26,000
  • Automated valuations accepted
  • Rates from 0.7% per month
Find out more

Looking to Sell
Property or Land?

Click for a free appraisal

Free Appraisal

You may also like

089

Multi-Lot Timed Auction
Former Delicatessen, Bridgehouse Gate, Pateley Bridge, Harrogate, North Yorkshire HG3 5HG
Former Delicatessen, Bridgehouse Gate, Pateley Bridge, Harrogate, North Yorkshire HG3 5HG
Auction Ends: 25/02/2026

Guide Price: £87,500+

View Listing

004

Multi-Lot Timed Auction
Edgefold Farmhouse & Barn, Edge Lane, Bolton, Lancashire BL7 0NQ
Edgefold Farmhouse & Barn, Edge Lane, Bolton, Lancashire BL7 0NQ
United Utilities Property Services Limited
Auction Ends: 25/02/2026

Guide Price: £550,000+

View Listing

075

Multi-Lot Timed Auction
Chapel Court, 204 Fleetwood Road North, Thornton-Cleveleys, Lancashire FY5 4BJ
Chapel Court, 204 Fleetwood Road North, Thornton-Cleveleys, Lancashire FY5 4BJ
Duxburys Commercial
Auction Ends: 25/02/2026

Guide Price: £350,000+

View Listing

450+ Strong Team

Local knowledge
national coverage

Our reach covers the UK with a network of over 30 UK offices.
Find the right professional using the below dropdowns.

Our Properties for Auction
Auction and guide block_Our auctions_2

Our Auctions

Explore our upcoming auctions and discover a wide range of properties and assets. With expert support and transparent bidding, you can find opportunities that match your goals, whether buying or selling.

Our Properties for Auction
Register for Auction Alerts
Auction and guide block_auction alerts_2

Auction Alerts

Stay up to date with all our latest auctions. Sign up for tailored alerts and receive notifications when new properties go live, so you’re ready to bid.

Register for Auction Alerts
Our Guide to Buying at Auction
Auction and guide block_guide to buying_2

Guide to buying

From first-time buyers to experienced investors, our Guide to Buying gives practical tips and advice on the auction process, researching lots, and bidding confidently to secure the best opportunities.

Our Guide to Buying at Auction
Our Guide to Selling at Auction
Auction and guide block_guide to selling_2

Guide to selling

Planning to sell at auction? Our Guide to Selling shows you how to prepare your property, set the right pricing strategy, and work with our team to achieve the best results — smoothly and successfully.

Our Guide to Selling at Auction

This site uses cookies to monitor site performance and provide a more responsive and personalised experience. You must agree to our use of certain cookies. For more information on how we use and manage cookies, please read our Privacy Policy.