Back to Results

048

82 Laird Road, Sheffield, South Yorkshire S6 4BT

Auction Ends: 25/03/2026

Description

A three bedroom end terrace house being one of four, occupying a good size level plot in the heart of this sought after residential area. The accommodation is in need of complete modernisation and offers excellent potential not only to refurbish but possibly extend to take advantage of the generous size plot.

Accommodation

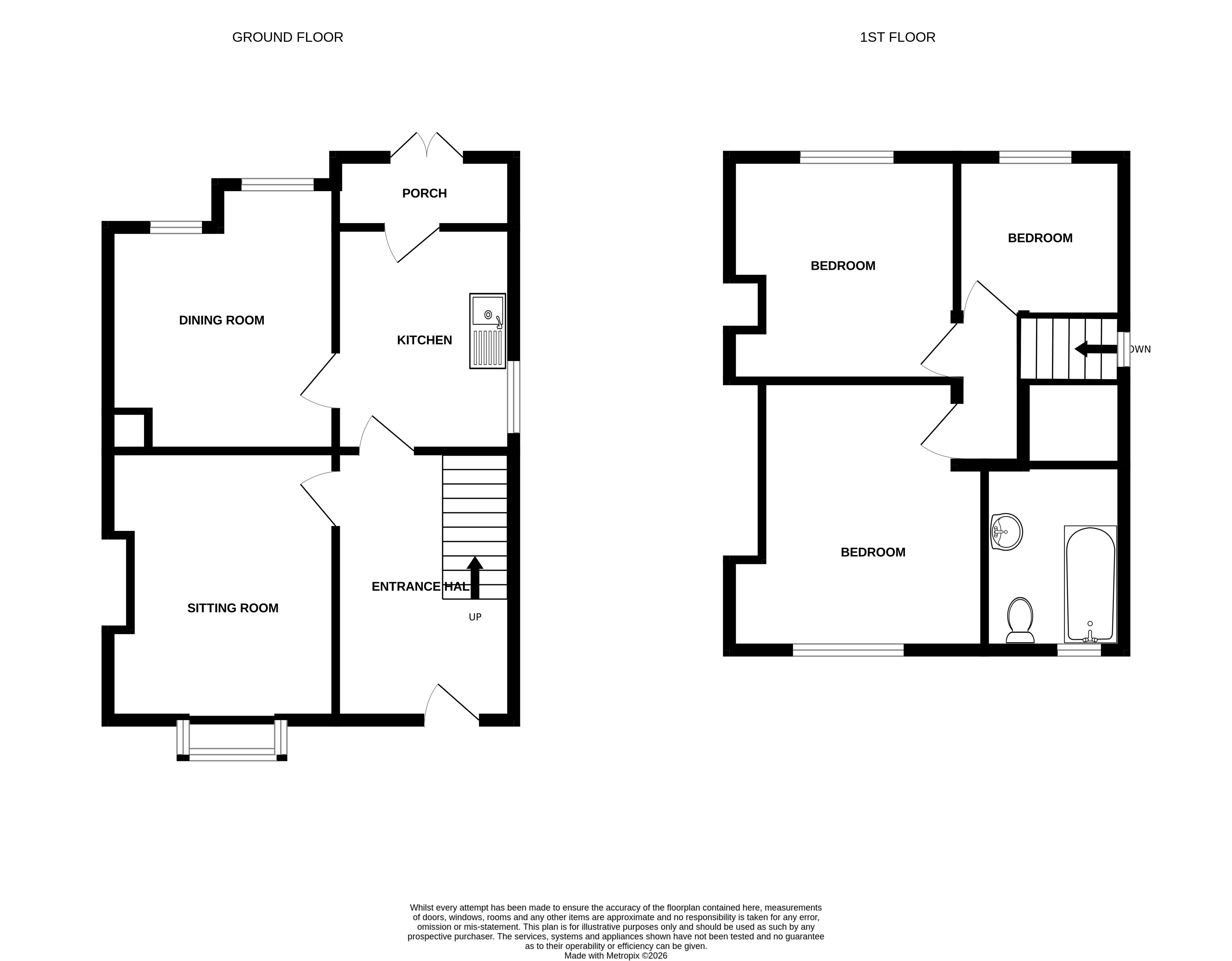
Ground Floor
Entrance Hall,
Sitting Room,
Dining Room,
Kitchen,
Rear Porch

First Floor
Landing,
3 Bedrooms,
Bathroom/WC

Outside

Front and rear gardens with side driveway

Site Area

Approximately 328 sq m (392 sq yds)

Tenure

See Legal pack

Occupancy

Vacant posession upon completion

Costs

Auction Details

The sale of this property will take place on the stated date by way of Multi lot timed auction and is being sold under the Unconditional sale type.

Binding contracts will be exchanged at the point of sale.

All sales are subject to our Common Auction Conditions and Bidder Terms. Properties located in Scotland and Northern Ireland will be subject to applicable local laws.

Auction Deposit and Fees

The following deposits and non- refundable auctioneers fees apply:

• 10% deposit (subject to a minimum of £5,000)

• Buyer’s Fee of 1.8% of the purchase price (subject to a minimum of £2,400 inc. VAT)

There may be additional fees listed in the Special Conditions of Sale, which will be available to view within the Legal Pack. You must read the Legal Pack carefully before bidding.

Additional Information

For full details about our auction processes, please refer to the Bidder Terms which can be viewed on our home page.

This explains the types of auction and sale methods we offer, the bidding registration process, your payment obligations, and how to view the Legal Pack (and any applicable home report for residential Scottish properties).

Guide Price & Reserve Price

Each property sold is subject to a Reserve Price. The Reserve Price will be within + or - 10% of the Guide Price. The Guide Price is issued solely as a guide so that a buyer can consider whether or not to pursue their interest. A full definition can be found within the Buyers Terms. 

General


Council Tax Band = B.

Address

82 Laird Road, Sheffield, South Yorkshire S6 4BT

Sold for £176,000

Key Features

  • Of interest to builders
  • 3 bed end terrace with driveway and ample room to extend
  • Sought after residential location
  • EPC Rating: TBC

Our Nearest Office:

Sheffield
Share this Property:

Chat with us online

Have a question? Start a chat with us now

Live chat
Background graphic

Looking To Finance A Purchase?

Short-Term Auction Finance.

Find out more

Looking to Sell Property or Land?

Click for a free appraisal

Free Appraisal

You may also like

061

Multi-Lot Timed Auction
Former Delicatessen, Bridgehouse Gate, Pateley Bridge, Harrogate, North Yorkshire HG3 5HG
Former Delicatessen, Bridgehouse Gate, Pateley Bridge, Harrogate, North Yorkshire HG3 5HG
Auction Ends: 25/03/2026

Available for £85,000

View Listing

011

Multi-Lot Timed Auction
Edgerton Cemetery Lodge, Cemetery Road, Edgerton, Huddersfield, West Yorkshire HD1 5NF
Edgerton Cemetery Lodge, Cemetery Road, Edgerton, Huddersfield, West Yorkshire HD1 5NF
Kirklees Council
Auction Ends: 25/03/2026

Available for £125,000

View Listing

029

Multi-Lot Timed Auction
1 Thornby Walk, Manchester, Greater Manchester M23 1FR
1 Thornby Walk, Manchester, Greater Manchester M23 1FR
Auction Ends: 25/03/2026

Available for £170,000

View Listing

450+ Strong Team

Local knowledge
national coverage

Our reach covers the UK with a network of over 30 UK offices.
Find the right professional using the below dropdowns.

Our Properties for Auction
Auction and guide block_Our auctions_2

Our Auctions

Explore our upcoming auctions and discover a wide range of properties and assets. With expert support and transparent bidding, you can find opportunities that match your goals, whether buying or selling.

Our Properties for Auction
Register for Auction Alerts
Auction and guide block_auction alerts_2

Auction Alerts

Stay up to date with all our latest auctions. Sign up for tailored alerts and receive notifications when new properties go live, so you’re ready to bid.

Register for Auction Alerts
Our Guide to Buying at Auction
Auction and guide block_guide to buying_2

Guide to buying

From first-time buyers to experienced investors, our Guide to Buying gives practical tips and advice on the auction process, researching lots, and bidding confidently to secure the best opportunities.

Our Guide to Buying at Auction
Our Guide to Selling at Auction
Auction and guide block_guide to selling_2

Guide to selling

Planning to sell at auction? Our Guide to Selling shows you how to prepare your property, set the right pricing strategy, and work with our team to achieve the best results — smoothly and successfully.

Our Guide to Selling at Auction

This site uses cookies to monitor site performance and provide a more responsive and personalised experience. You must agree to our use of certain cookies. For more information on how we use and manage cookies, please read our Privacy Policy.