Back to Results

Land on the West side of 97 Grove Road, Stoke-On-Trent, Staffordshire ST4 4LN

Auction Date: 30/04/2026 9am

Description

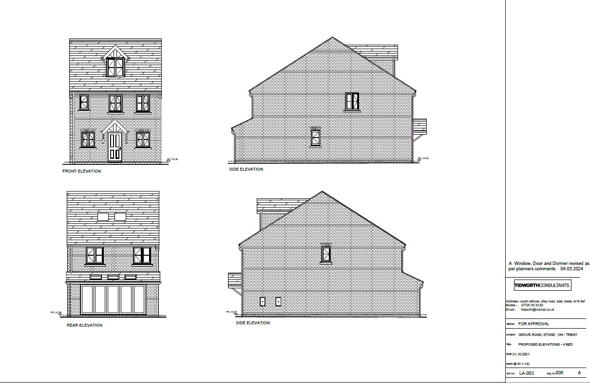
A freehold parcel of land extending to approximately 0.36 acres located along Grove Road benefitting from planning consent for the creation of 5 residential dwellings and associated landscaping and parking. The planning consists of 4 x 3 bed semis and 1 x 4 bed detached ( 5 dwellings valid until May 2027.)

The site is located in Heron Cross, on the outskirts of Fenton and forms an extension of existing housing stock along Grove Road. There is a junior school close to the site and access to the A50 dual carriageway is within half a mile. The site fronts Grove Road close to the Junction with Claud Street.

Interested parties are advised to inspect the legal pack for more information along with inspecting planning documents on the City of Stoke On Trent council planning portal number 70550/ful.

We have been advised the overage will be payable by the land owner not the purchaser

Tenure

Freehold

Occupancy

Vacant posession upon completion

Costs

Auction Details

The sale of this property will take place on the stated date by way of Live streamed auction and is being sold under the Unconditional sale type.

Binding contracts will be exchanged at the point of sale.

All sales are subject to our Common Auction Conditions and Bidder Terms. Properties located in Scotland and Northern Ireland will be subject to applicable local laws.

Auction Deposit and Fees

The following deposits and non- refundable auctioneers fees apply:

• 5% deposit (subject to a minimum of £5,000)

• Buyer’s Fee of 4.8% of the purchase price (subject to a minimum of £6,000 inc. VAT)

There may be additional fees listed in the Special Conditions of Sale, which will be available to view within the Legal Pack. You must read the Legal Pack carefully before bidding.

Additional Information

For full details about our auction processes, please refer to the Bidder Terms which can be viewed on our home page.

This explains the types of auction and sale methods we offer, the bidding registration process, your payment obligations, and how to view the Legal Pack (and any applicable home report for residential Scottish properties).

Guide Price & Reserve Price

Each property sold is subject to a Reserve Price. The Reserve Price will be within + or - 10% of the Guide Price. The Guide Price is issued solely as a guide so that a buyer can consider whether or not to pursue their interest. A full definition can be found within the Buyers Terms. 

General

Note
Please be advised that the auctioneers have not personally inspected the property. Prospective buyers are advised to make a viewing enquiry and any other necessary independent enquiries before placing their bid, as this will be binding.

Draft Sales Particulars
These sales details are awaiting vendor approval

Address

Land on the West side of 97 Grove Road, Stoke-On-Trent, Staffordshire ST4 4LN

Guide Price

£40,000+

Rory Mack - Stoke

Key Features

  • Planning for 5 residential dwellings - 0.36 Acres (4 x 3 bed semis and 1 x 4 bed detached)
  • Anticipated potential gross development value of circa £1.35 million
  • ST4 4LH (site is opposite the Junction with Claud Street along Grove Road)
  • Planning valid until May 2027.

Our Nearest Office:

Manchester
Share this Property:
Background graphic

Looking To Finance A Purchase?

Short-Term Auction Finance.

Find out more

Looking to Sell Property or Land?

Click for a free appraisal

Free Appraisal

You may also like

Live Stream Auction
155 & 157 Monks Road, Lincoln, Lincolnshire LN2 5JJ
155 & 157 Monks Road, Lincoln, Lincolnshire LN2 5JJ

Guide Price: £485,000+

View Listing

Live Stream Auction
Halls Newsagents, Old Print House, Market Square, Kirkby Stephen CA17 4QT
Halls Newsagents, Old Print House, Market Square, Kirkby Stephen CA17 4QT

Guide Price: £115,000+

View Listing

Live Stream Auction
Apartment 756, 58 Sherborne Street, Birmingham, West Midlands B16 8FT
Apartment 756, 58 Sherborne Street, Birmingham, West Midlands B16 8FT

Guide Price: £59,500+

View Listing

450+ Strong Team

Local knowledge
national coverage

Our reach covers the UK with a network of over 30 UK offices.
Find the right professional using the below dropdowns.

Our Properties for Auction
Auction and guide block_Our auctions_2

Our Auctions

Explore our upcoming auctions and discover a wide range of properties and assets. With expert support and transparent bidding, you can find opportunities that match your goals, whether buying or selling.

Our Properties for Auction
Register for Auction Alerts
Auction and guide block_auction alerts_2

Auction Alerts

Stay up to date with all our latest auctions. Sign up for tailored alerts and receive notifications when new properties go live, so you’re ready to bid.

Register for Auction Alerts
Our Guide to Buying at Auction
Auction and guide block_guide to buying_2

Guide to buying

From first-time buyers to experienced investors, our Guide to Buying gives practical tips and advice on the auction process, researching lots, and bidding confidently to secure the best opportunities.

Our Guide to Buying at Auction
Our Guide to Selling at Auction
Auction and guide block_guide to selling_2

Guide to selling

Planning to sell at auction? Our Guide to Selling shows you how to prepare your property, set the right pricing strategy, and work with our team to achieve the best results — smoothly and successfully.

Our Guide to Selling at Auction

This site uses cookies to monitor site performance and provide a more responsive and personalised experience. You must agree to our use of certain cookies. For more information on how we use and manage cookies, please read our Privacy Policy.