Back to Results

015

Land adjoining 43 Norton Avenue, Sheffield, South Yorkshire S12 2LA

Auction Ends: 27/05/2026

Description

A single building plot of 175 Sq.M located a short walk from Gleadless Town End and a good range of facilities, including Supertram. Planning consent has been granted for a 3 bedroom detached house and potential is offered as a self build project or a to a builder for resale in this popular area of the city

Accommodation

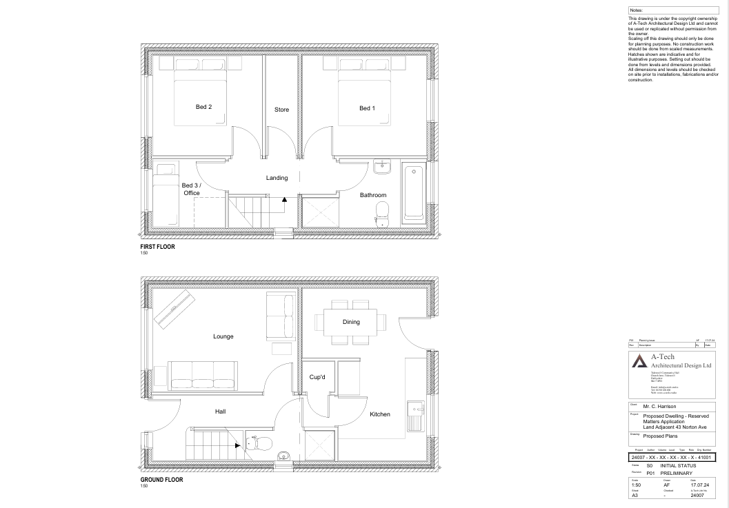
Proposed Ground Floor
Entrance Hall, Cloakroom/WC, Lounge & Dining Kitchen

Proposed First Floor
Landing, 3 Bedrooms, Bathroom/WC & Store

Site Area

175 Sq/M

Tenure

Freehold

Planning

Planning consent was granted on the 24th September 2024 for "Demolition of 2x garages and erection of a dwellinghouse" Ref. 24/02140/REM (Formerly PP 13254276) Full details can be seen on the Sheffield City Council Planning Portal

Occupancy

Vacant posession upon completion

Costs

Auction Details

The sale of this property will take place on the stated date by way of Multi lot timed auction and is being sold under the Unconditional sale type.

Binding contracts will be exchanged at the point of sale.

All sales are subject to our Common Auction Conditions and Bidder Terms. Properties located in Scotland and Northern Ireland will be subject to applicable local laws.

Auction Deposit and Fees

The following deposits and non- refundable auctioneers fees apply:

• 10% deposit (subject to a minimum of £5,000)

• Buyer’s Fixed Fee of £1500 ( inc. VAT)

There may be additional fees listed in the Special Conditions of Sale, which will be available to view within the Legal Pack. You must read the Legal Pack carefully before bidding.

Additional Information

For full details about our auction processes, please refer to the Bidder Terms which can be viewed on our home page.

This explains the types of auction and sale methods we offer, the bidding registration process, your payment obligations, and how to view the Legal Pack (and any applicable home report for residential Scottish properties).

Guide Price & Reserve Price

Each property sold is subject to a Reserve Price. The Reserve Price will be within + or - 10% of the Guide Price. The Guide Price is issued solely as a guide so that a buyer can consider whether or not to pursue their interest. A full definition can be found within the Buyers Terms. 

Address

Land adjoining 43 Norton Avenue, Sheffield, South Yorkshire S12 2LA

Guide Price

£35,000+

Key Features

  • Freehold building plot - 175 Sq.M
  • Planning consent for 3 bedroom detached house
  • Popular location within walking distance of Gleadless shops

Our Nearest Office:

Sheffield
Share this Property:

Chat with us online

Have a question? Start a chat with us now

Live chat
Background graphic

Looking To Finance A Purchase?

Short-Term Auction Finance.

Find out more

Looking to Sell Property or Land?

Click for a free appraisal

Free Appraisal

You may also like

014

Multi-Lot Timed Auction
10A New Cateaton Street, Bury BL9 6DY
10A New Cateaton Street, Bury BL9 6DY
Auction Ends: 27/05/2026

Guide Price: £87,000+

View Listing

007

Multi-Lot Timed Auction
162-164 Blacker Road, Huddersfield, West Yorkshire HD1 5HH
162-164 Blacker Road, Huddersfield, West Yorkshire HD1 5HH
Kirklees Council
Auction Ends: 27/05/2026

Guide Price: £100,000+

View Listing

010

Multi-Lot Timed Auction
Garage & Premises, St Johns Road, Chesterfield, Derbyshire S41 8QN
Garage & Premises, St Johns Road, Chesterfield, Derbyshire S41 8QN
Redbrik - Chesterfield
Auction Ends: 27/05/2026

Guide Price: £485,000+

View Listing

450+ Strong Team

Local knowledge
national coverage

Our reach covers the UK with a network of over 30 UK offices.
Find the right professional using the below dropdowns.

Our Properties for Auction
Auction and guide block_Our auctions_2

Our Auctions

Explore our upcoming auctions and discover a wide range of properties and assets. With expert support and transparent bidding, you can find opportunities that match your goals, whether buying or selling.

Our Properties for Auction
Register for Auction Alerts
Auction and guide block_auction alerts_2

Auction Alerts

Stay up to date with all our latest auctions. Sign up for tailored alerts and receive notifications when new properties go live, so you’re ready to bid.

Register for Auction Alerts
Our Guide to Buying at Auction
Auction and guide block_guide to buying_2

Guide to buying

From first-time buyers to experienced investors, our Guide to Buying gives practical tips and advice on the auction process, researching lots, and bidding confidently to secure the best opportunities.

Our Guide to Buying at Auction
Our Guide to Selling at Auction
Auction and guide block_guide to selling_2

Guide to selling

Planning to sell at auction? Our Guide to Selling shows you how to prepare your property, set the right pricing strategy, and work with our team to achieve the best results — smoothly and successfully.

Our Guide to Selling at Auction

This site uses cookies to monitor site performance and provide a more responsive and personalised experience. You must agree to our use of certain cookies. For more information on how we use and manage cookies, please read our Privacy Policy.