Back to Results

Lower Farm House, Netherseal Road, Chilcote, Swadlincote, Leicestershire DE12 8DQ

Auction Date: 28/05/2026 9am

Description

A rare opportunity to purchase a substantial development site situated in a highly regarded village location.

To offer five large residential dwellings.

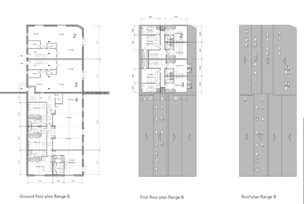
The site extends to approximately 1.3 acres and comprises of a substantial farm house and a range of outbuildings with full planning permission to convert to 4 x Barn Conversions and a stunning three storey former farm house along with garaging and home office space.

Planning was granted for the Barn Conversions in December 2025 Ref- 20/00787/FUL.
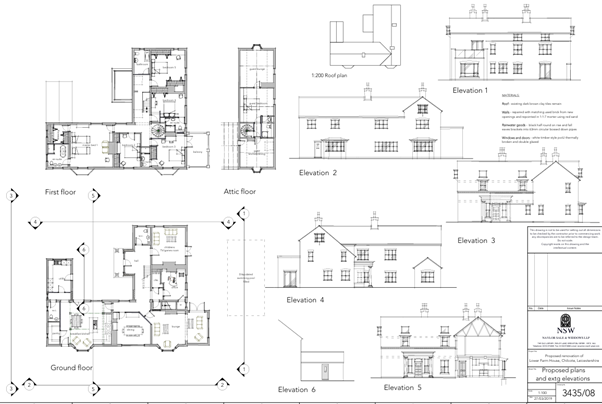
Planning for the Farm House was granted in 2019 Ref- 19/01157/FUL and we are told is valid due to some works already being started.

Full information can be found on North West Leicestershire Council website.

Farm House - Five Bed
Barn One - Three Bed
Barn Two- Three Bed
Barn Three - Three Bed
Barn Four - Four Bed

There are views over the surrounding countryside and the village Church.

The Farm House is arranged over three floors with additional cellar and the Barn Conversions will be over either one or two floors. In addition the will be a further barn which will offer garaging and home office space for the dwellings.

Chilcote is a quiet and desirable village location but has easy access to the M42 and in turn the M1 and M6 Motorways.

The total accommodation once developed will extend to approx. 13,500 sqft.

Accommodation

Farm House - 455 Sqm
Hall, Cloakroom, Four Reception Rooms, Dining Kitchen, Utility, Five Bedrooms, Three En-suites, Main Bathroom, Cellar. Second floor Guest Suite/Flat.

Barn One - 142 Sqm
Hall, Cloakroom, Lounge/Diner, Kitchen, Three Bedrooms, Ensuite and Family Bathroom. Separate Home Office.

Barn Two - 184 Sqm
Hall, Cloakroom, Lounge/Kitchen/Diner, Utility, Three Bedrooms all with En-suites and Master Dressing room. Separate Home Office.

Barn Three - 184 sqm
Hall, Cloakroom, Lounge/Kitchen/Diner, Utility, Three Bedrooms all with Ensuites and Master Dressing room. Separate Home Office.

Barn Four - 244 Sqm
Hall, Cloakroom, Lounge/Diner/Kitchen, Four Bedrooms all with En-suites and Master Dressing Room.

Draft Sales Particulars
These sales details are awaiting vendor approval

Tenure

Freehold

Occupancy

Vacant posession upon completion

Costs

Auction Details

The sale of this property will take place on the stated date by way of Live streamed auction and is being sold under the Unconditional sale type.

Binding contracts will be exchanged at the point of sale.

All sales are subject to our Common Auction Conditions and Bidder Terms. Properties located in Scotland and Northern Ireland will be subject to applicable local laws.

Auction Deposit and Fees

The following deposits and non- refundable auctioneers fees apply:

• 10% deposit (subject to a minimum of £5,000)

• Buyer’s Fee of 1.2% of the purchase price (subject to a minimum of £1,500 inc. VAT)

There may be additional fees listed in the Special Conditions of Sale, which will be available to view within the Legal Pack. You must read the Legal Pack carefully before bidding.

Additional Information

For full details about our auction processes, please refer to the Bidder Terms which can be viewed on our home page.

This explains the types of auction and sale methods we offer, the bidding registration process, your payment obligations, and how to view the Legal Pack (and any applicable home report for residential Scottish properties).

Guide Price & Reserve Price

Each property sold is subject to a Reserve Price. The Reserve Price will be within + or - 10% of the Guide Price. The Guide Price is issued solely as a guide so that a buyer can consider whether or not to pursue their interest. A full definition can be found within the Buyers Terms. 

Address

Lower Farm House, Netherseal Road, Chilcote, Swadlincote, Leicestershire DE12 8DQ

Guide Price

£1,000,000+

Nicholas Humphreys - Burton on Trent

Key Features

  • Development Site
  • Large Farm House and Planning for 4 x Barn Conversions
  • Highly Desirable Village Location
  • To offer 1251 Sqm / 13,465 sqft of total accommodation
  • Site Area of circa 1.3 acres
  • Great Road Links and Motorway Access
  • EPC Rating: Awaited

Our Nearest Office:

Derby
Share this Property:
Background graphic

Looking To Finance A Purchase?

Short-Term Auction Finance.

Find out more

Looking to Sell Property or Land?

Click for a free appraisal

Free Appraisal

You may also like

Live Stream Auction
15-17 Soresby Street, Chesterfield, Derbyshire S40 1JW
15-17 Soresby Street, Chesterfield, Derbyshire S40 1JW

Guide Price: £80,000+

View Listing

Live Stream Auction
66 Jackson Street, Brotton, Saltburn-By-The-Sea TS12 2TE
66 Jackson Street, Brotton, Saltburn-By-The-Sea TS12 2TE

Guide Price: £30,000+

View Listing

Live Stream Auction
17 Nicola Gardens, Derby DE23 1NQ
17 Nicola Gardens, Derby DE23 1NQ
Hannells - Littleover

Guide Price: £85,000+

View Listing

450+ Strong Team

Local knowledge
national coverage

Our reach covers the UK with a network of over 30 UK offices.
Find the right professional using the below dropdowns.

Our Properties for Auction
Auction and guide block_Our auctions_2

Our Auctions

Explore our upcoming auctions and discover a wide range of properties and assets. With expert support and transparent bidding, you can find opportunities that match your goals, whether buying or selling.

Our Properties for Auction
Register for Auction Alerts
Auction and guide block_auction alerts_2

Auction Alerts

Stay up to date with all our latest auctions. Sign up for tailored alerts and receive notifications when new properties go live, so you’re ready to bid.

Register for Auction Alerts
Our Guide to Buying at Auction
Auction and guide block_guide to buying_2

Guide to buying

From first-time buyers to experienced investors, our Guide to Buying gives practical tips and advice on the auction process, researching lots, and bidding confidently to secure the best opportunities.

Our Guide to Buying at Auction
Our Guide to Selling at Auction
Auction and guide block_guide to selling_2

Guide to selling

Planning to sell at auction? Our Guide to Selling shows you how to prepare your property, set the right pricing strategy, and work with our team to achieve the best results — smoothly and successfully.

Our Guide to Selling at Auction

This site uses cookies to monitor site performance and provide a more responsive and personalised experience. You must agree to our use of certain cookies. For more information on how we use and manage cookies, please read our Privacy Policy.