Back to Results

185

66 Bar Lane, Mapplewell, Barnsley S75 6DE

Auction Date: 26/02/2026 9am

Description

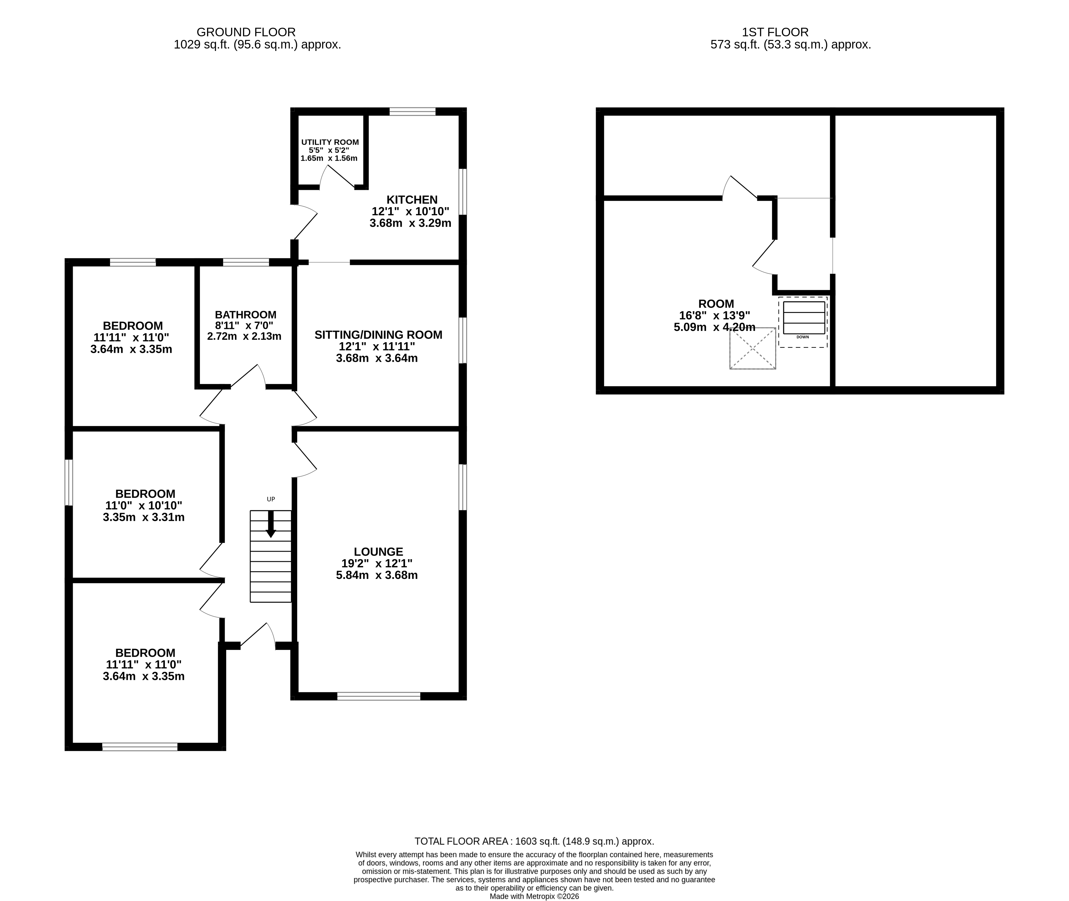
This three bedroom detached bungalow, in Mapplewell, offers an investor a great opportunity to add value. Already a substantial dwelling, featuring three double bedrooms and two reception rooms, it also benefits from a large loft room with a space saving staircase, and Velux window already installed. The added value will come from gaining retrospective building regulation sign off for this room and creating more bedrooms/bathrooms on the first floor. The remainder of the house would benefit from cosmetic updating and installation of a heating system.

Externally, there is a driveway leading to a detached garage and gardens to the front and rear.

Location
Positioned on Bar Lane, a very desirable and rural part of Mapplewell village, close to the local amenities and just 3.5 miles south east of Junction 38 of the M1.

Tenure

Freehold

Occupancy

Vacant posession upon completion

Costs

Auction Details

The sale of this property will take place on the stated date by way of Live streamed auction and is being sold under the Unconditional sale type.

Binding contracts will be exchanged at the point of sale.

All sales are subject to our Common Auction Conditions and Bidder Terms. Properties located in Scotland and Northern Ireland will be subject to applicable local laws.

Auction Deposit and Fees

The following deposits and non- refundable auctioneers fees apply:

• 10% deposit (subject to a minimum of £5,000)

• Buyers Fee of 1.8% of the purchase price inc VAT.

There may be additional fees listed in the Special Conditions of Sale, which will be available to view within the Legal Pack. You must read the Legal Pack carefully before bidding.

Additional Information

For full details about our auction processes, please refer to the Bidder Terms which can be viewed on our home page.

This explains the types of auction and sale methods we offer, the bidding registration process, your payment obligations, and how to view the Legal Pack (and any applicable home report for residential Scottish properties).

Guide Price & Reserve Price

Each property sold is subject to a Reserve Price. The Reserve Price will be within + or - 10% of the Guide Price. The Guide Price is issued solely as a guide so that a buyer can consider whether or not to pursue their interest. A full definition can be found within the Buyers Terms. 

Address

66 Bar Lane, Mapplewell, Barnsley S75 6DE

Sold Prior to Auction

Key Features

  • Three bedroom detached bungalow
  • Great opportunity to add value
  • Driveway, detached garage, front and rear gardens

Our Nearest Office:

Sheffield
Share this Property:
Background graphic

Looking To Finance A Purchase?

Short-Term Auction Finance.

Find out more

Looking to Sell Property or Land?

Click for a free appraisal

Free Appraisal

You may also like

243

Withdrawn
Unit 14-17, Metropolitan Business Park, Preston New Road, Blackpool, Lancashire FY3 9LT
Unit 14-17, Metropolitan Business Park, Preston New Road, Blackpool, Lancashire FY3 9LT
Duxburys Commercial

Guide Price: £595,000+

View Listing

117

Sold at auction
85 Saltergate, Chesterfield S40 1JS
85 Saltergate, Chesterfield S40 1JS
Chesterfield Borough Council

Sold for £130,000

View Listing

116

Sold at auction
6-8 Broad Pavement, Chesterfield S40 1RP
6-8 Broad Pavement, Chesterfield S40 1RP
Chesterfield Borough Council

Sold for £160,000

View Listing

450+ Strong Team

Local knowledge
national coverage

Our reach covers the UK with a network of over 30 UK offices.
Find the right professional using the below dropdowns.

Our Properties for Auction
Auction and guide block_Our auctions_2

Our Auctions

Explore our upcoming auctions and discover a wide range of properties and assets. With expert support and transparent bidding, you can find opportunities that match your goals, whether buying or selling.

Our Properties for Auction
Register for Auction Alerts
Auction and guide block_auction alerts_2

Auction Alerts

Stay up to date with all our latest auctions. Sign up for tailored alerts and receive notifications when new properties go live, so you’re ready to bid.

Register for Auction Alerts
Our Guide to Buying at Auction
Auction and guide block_guide to buying_2

Guide to buying

From first-time buyers to experienced investors, our Guide to Buying gives practical tips and advice on the auction process, researching lots, and bidding confidently to secure the best opportunities.

Our Guide to Buying at Auction
Our Guide to Selling at Auction
Auction and guide block_guide to selling_2

Guide to selling

Planning to sell at auction? Our Guide to Selling shows you how to prepare your property, set the right pricing strategy, and work with our team to achieve the best results — smoothly and successfully.

Our Guide to Selling at Auction

This site uses cookies to monitor site performance and provide a more responsive and personalised experience. You must agree to our use of certain cookies. For more information on how we use and manage cookies, please read our Privacy Policy.