Back to Results

000

Former College Building, Spa Road East, Llandrindod Wells LD1 5ES

Description

An incredible opportunity to acquire a historic building with a rich history offering an unbelievable and seldom seen development opportunity with breath taking potential.

The former college building at Spa Road East, Llandrindod Wells, was once part of the towns development as a Victorian spa resort, likely serving educational needs or as converted accommodation during its boom. Evolving from its origins amidst the influx of visitors seeking natural springs in the late 19th century when hotels and grand houses dominated the landscape, before becoming a college and later potentially redeveloped, fitting into the towns history as a growing centre in Powys.

This impressive and iconic building is set over several floors and requires refurbishment as well as offering multiple opportunities to develop the building as a whole.

No viewings are available.

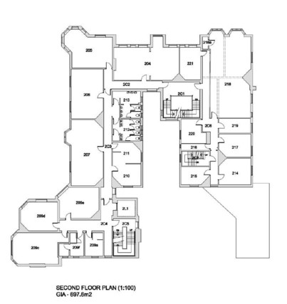
Accommodation

Note
Please be advised the auctioneers have not personally inspected the property. Prospective buyers are advised to make any necessary independent enquiries before placing their bid, as this will be binding.

Draft Sales Details
These sales details are awaiting vendor approval.

Occupancy

Vacant posession upon completion

Costs

Auction Details:

The sale of this property will take place on the stated date by way of Auction Event and is being sold under an Unconditional sale type.

Binding contracts of sale will be exchanged at the point of sale.

All sales are subject to SDL Property Auctions Buyers Terms. Properties located in Scotland will be subject to applicable Scottish law.

Auction Deposit and Fees:

The following deposits and non- refundable auctioneers fees apply:

• 5% deposit (subject to a minimum of £5,000)

• Buyers Fee of 4.8% of the purchase price (subject to a minimum of £6,000 inc. VAT). 

The Buyers Fee does not contribute to the purchase price, however it will be taken into account when calculating the Stamp Duty Land Tax for the property (known as Land and Buildings Transaction Tax for properties located in Scotland), because it forms part of the chargeable consideration for the property.

There may be additional fees listed in the Special Conditions of Sale, which will be available to view within the Legal Pack. You must read the Legal Pack carefully before bidding.

Additional Information:

For full details about all auction methods and sale types please refer to the Auction Conduct Guide which can be viewed on the SDL Property Auctions home page.

This guide includes details on the auction registration process, your payment obligations and how to view the Legal Pack (and any applicable Home Report for residential Scottish properties).

Guide Price & Reserve Price:

Each property sold is subject to a Reserve Price. The Reserve Price will be within + or - 10% of the Guide Price. The Guide Price is issued solely as a guide so that a buyer can consider whether or not to pursue their interest. A full definition can be found within the Buyers Terms.

Address

Former College Building, Spa Road East, Llandrindod Wells LD1 5ES

Guide Price

£175,000+

Key Features

  • Iconic and Historic Building
  • Rarely seen opportunity
  • Former college building at Spa Road East
  • Investment and Development opportunity
  • Requires refurbishment
  • Set over several floors and full of period character features
  • EPC Rating: C

Our Nearest Office:

Bristol
Share this Property:

Looking To
Finance A Purchase?

Short-Term Auction Finance.

  • Residential & commercial securities
  • Loans from £26,000
  • Automated valuations accepted
  • Rates from 0.7% per month
Find out more

Looking to Sell
Property or Land?

Click for a free appraisal

Free Appraisal

You may also like

000

Live Stream Auction
Flat 1, 29-31 Cookson Street, Blackpool FY1 3EA
Flat 1, 29-31 Cookson Street, Blackpool FY1 3EA

Guide Price: £20,000+

View Listing

000

Live Stream Auction
17-19 Broad Pavement, Chesterfield S40 1RP
17-19 Broad Pavement, Chesterfield S40 1RP
Chesterfield Borough Council

Guide Price: £195,000+

View Listing

000

Live Stream Auction
2 Broad Street, St. Columb Major, Cornwall TR9 6AS
2 Broad Street, St. Columb Major, Cornwall TR9 6AS

Guide Price: £200,000+

View Listing

450+ Strong Team

Local knowledge
national coverage

Our reach covers the UK with a network of over 30 UK offices.
Find the right professional using the below dropdowns.

Our Properties for Auction
Auction and guide block_Our auctions_2

Our Auctions

Explore our upcoming auctions and discover a wide range of properties and assets. With expert support and transparent bidding, you can find opportunities that match your goals, whether buying or selling.

Our Properties for Auction
Register for Auction Alerts
Auction and guide block_auction alerts_2

Auction Alerts

Stay up to date with all our latest auctions. Sign up for tailored alerts and receive notifications when new properties go live, so you’re ready to bid.

Register for Auction Alerts
Our Guide to Buying at Auction
Auction and guide block_guide to buying_2

Guide to buying

From first-time buyers to experienced investors, our Guide to Buying gives practical tips and advice on the auction process, researching lots, and bidding confidently to secure the best opportunities.

Our Guide to Buying at Auction
Our Guide to Selling at Auction
Auction and guide block_guide to selling_2

Guide to selling

Planning to sell at auction? Our Guide to Selling shows you how to prepare your property, set the right pricing strategy, and work with our team to achieve the best results — smoothly and successfully.

Our Guide to Selling at Auction

This site uses cookies to monitor site performance and provide a more responsive and personalised experience. You must agree to our use of certain cookies. For more information on how we use and manage cookies, please read our Privacy Policy.