Back to Results

000

Oakbarn Cottage, 8 Westfield Lane, Idle, Bradford, West Yorkshire BD10 8PY

Auction Date: 26/03/2026 9am

Description

A unique two bedroomed semi-detached property in the heart of Idle, Bradford.

The property has a 'one of a kind' layout, with tiered accommodation throughout. Although the current style may suit the age of the property, it would benefit from upgrading and provides a manageable and affordable project for an investor. The property has a central heating system and traditional timber sash windows.
Externally, the property is street lined and to the rear, forms part of a charming cobbled courtyard. There is space for parking in front of the integral garage, which also may lend itself to conversion, with some clever thinking, and subject to the necessary consents.

Accommodation

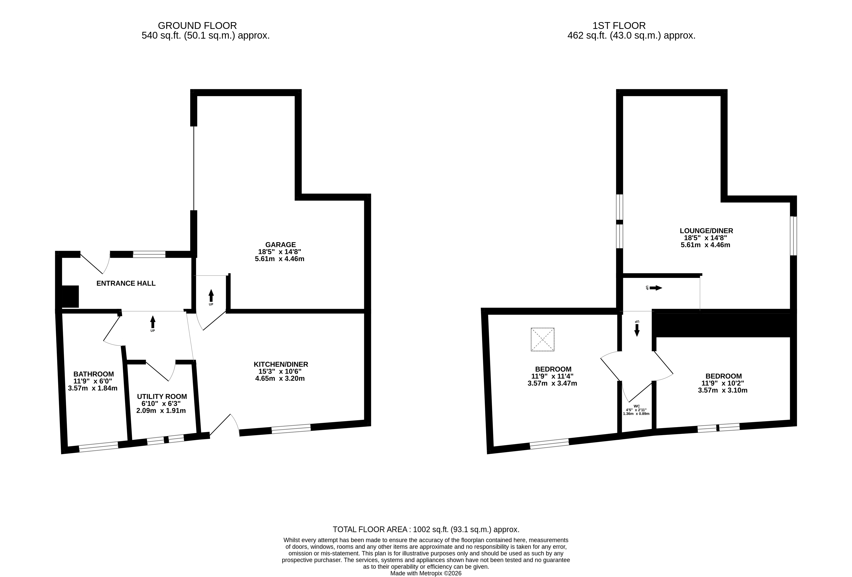
Ground Floor
Rear Entrance Hall, Dining Kitchen, Utility Room, Bathroom and Access/stairs to Garage.

First Floor
Lounge, Dining Area, Two Bedrooms and WC.

Occupancy

Vacant posession upon completion

Costs

Auction Details

The sale of this property will take place on the stated date by way of Live streamed auction and is being sold under the Unconditional sale type.

Binding contracts will be exchanged at the point of sale.

All sales are subject to our Common Auction Conditions and Bidder Terms. Properties located in Scotland and Northern Ireland will be subject to applicable local laws.

Auction Deposit and Fees

The following deposits and non- refundable auctioneers fees apply:

• 10% deposit (subject to a minimum of £5,000)

• Buyer’s Fee of 1.2% of the purchase price (subject to a minimum of £1,500 inc. VAT)

There may be additional fees listed in the Special Conditions of Sale, which will be available to view within the Legal Pack. You must read the Legal Pack carefully before bidding.

Additional Information

For full details about our auction processes, please refer to the Bidder Terms which can be viewed on our home page.

This explains the types of auction and sale methods we offer, the bidding registration process, your payment obligations, and how to view the Legal Pack (and any applicable home report for residential Scottish properties).

Guide Price & Reserve Price

Each property sold is subject to a Reserve Price. The Reserve Price will be within + or - 10% of the Guide Price. The Guide Price is issued solely as a guide so that a buyer can consider whether or not to pursue their interest. A full definition can be found within the Buyers Terms. 

General

Conservation Area
We have been made aware this property is in the Idle and The Green conservation area. Prospective buyers are advised to make all necessary independent enquiries prior to bidding, as any bid made will be binding.

Address

Oakbarn Cottage, 8 Westfield Lane, Idle, Bradford, West Yorkshire BD10 8PY

Guide Price

£145,000+

Key Features

  • Two Bedroomed Stone Semi-Detached
  • Integrated Garage With Scope To Develop
  • Requires Updating
  • Historical Part of Idle

Our Nearest Office:

Leeds
Share this Property:

Looking To
Finance A Purchase?

Short-Term Auction Finance.

  • Residential & commercial securities
  • Loans from £26,000
  • Automated valuations accepted
  • Rates from 0.7% per month
Find out more

Looking to Sell
Property or Land?

Click for a free appraisal

Free Appraisal

You may also like

000

Live Stream Auction
Garsdale Street Methodist Chapel, Garsdale, Sedbergh LA10 5PQ
Garsdale Street Methodist Chapel, Garsdale, Sedbergh LA10 5PQ

Guide Price: £35,000 - £40,000

View Listing

000

Live Stream Auction
4 Burns Avenue, Nottingham NG7 4DR
4 Burns Avenue, Nottingham NG7 4DR

Guide Price: £180,000+

View Listing

000

Live Stream Auction
Garage Site at New Road, Barlborough, Derbyshire S43 4HY
Garage Site at New Road, Barlborough, Derbyshire S43 4HY
Bolsover District Council

Guide Price: £10,000+

View Listing

450+ Strong Team

Local knowledge
national coverage

Our reach covers the UK with a network of over 30 UK offices.
Find the right professional using the below dropdowns.

Our Properties for Auction
Auction and guide block_Our auctions_2

Our Auctions

Explore our upcoming auctions and discover a wide range of properties and assets. With expert support and transparent bidding, you can find opportunities that match your goals, whether buying or selling.

Our Properties for Auction
Register for Auction Alerts
Auction and guide block_auction alerts_2

Auction Alerts

Stay up to date with all our latest auctions. Sign up for tailored alerts and receive notifications when new properties go live, so you’re ready to bid.

Register for Auction Alerts
Our Guide to Buying at Auction
Auction and guide block_guide to buying_2

Guide to buying

From first-time buyers to experienced investors, our Guide to Buying gives practical tips and advice on the auction process, researching lots, and bidding confidently to secure the best opportunities.

Our Guide to Buying at Auction
Our Guide to Selling at Auction
Auction and guide block_guide to selling_2

Guide to selling

Planning to sell at auction? Our Guide to Selling shows you how to prepare your property, set the right pricing strategy, and work with our team to achieve the best results — smoothly and successfully.

Our Guide to Selling at Auction

This site uses cookies to monitor site performance and provide a more responsive and personalised experience. You must agree to our use of certain cookies. For more information on how we use and manage cookies, please read our Privacy Policy.