Back to Results

039

1-4 Salisbury Street, Widnes, Cheshire WA8 6PJ

Auction Ends: 29/04/2026

Description

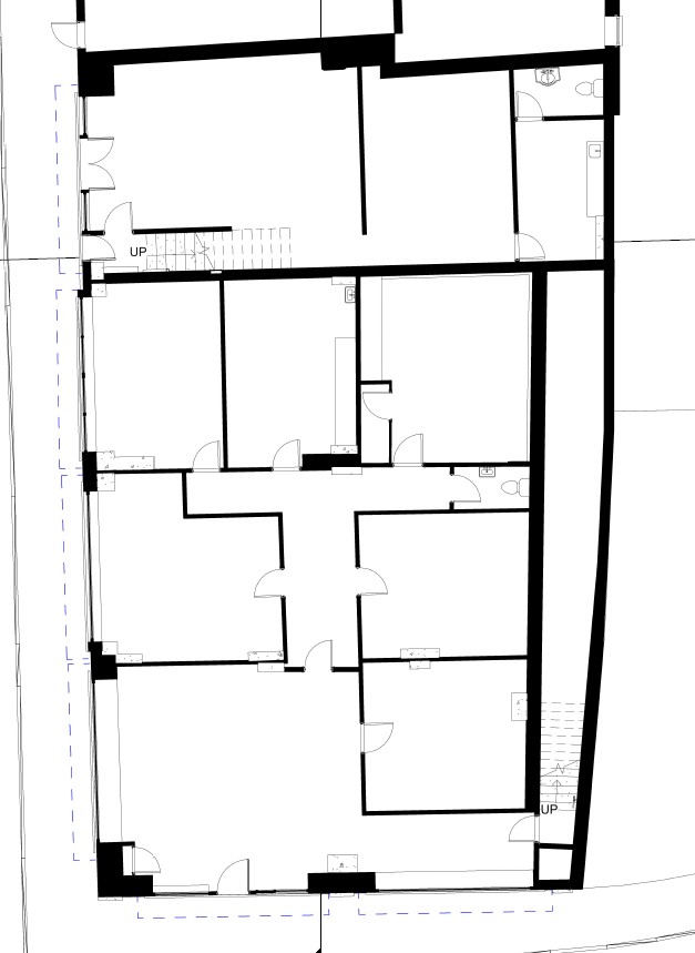
A modern retail building extending to approximately 640 Sq M (6,888 Sq Ft) arranged over ground and first floor. Unit 1-3 is currently let to Point Accounting on a Tenancy at Will at a rent of £12,000 per annum, with Unit 4 being vacant. Part of the first floor area is currently in shell condition, with the opportunity to add value by completing the fit-out/conversion works.

The property has frontage to South Street and Salisbury Street and is a short distance from Albert Square Shopping Centre. There is a 300-space free car park adjacent and nearby retailers include Greggs, Halifax, CEX and Morrisons.

The property benefits from planning consent for subdivision of the ground floor accommodation into three commercial units and also change of use consent to convert the first floor into two flats. The property may be suitable for other alternative uses, subject to obtaining the necessary consents.

Accommodation

Unit 1-3:
Ground Floor: 207 Sq M (2,228 Sq Ft)


First Floor: 227 Sq M (2,443 Sq Ft)


Total: 434 Sq M (4,671 Sq Ft)

Unit 4:
Ground Floor: 105 Sq M (1,130 Sq Ft)


First Floor: 101 Sq M (1,087 Sq Ft)


Total: 206 Sq M (2,217 Sq Ft)

Site Area

Approximately 341 Sq M (408 Sq Yds)

Tenure

Leasehold

Planning

The property benefits from planning consent (25/00264/FUL) for the proposed subdivision of the ground floor commercial unit into 3 commercial units, and the insertion of two new shop fronts. In addition, under application 25/00088/PRIOR, consent for a change of use of a building falling under Use Class E into a mixed use, Class E at ground floor, and 2 flats (Class C3) at first floors has also been approved. Interested parties should consult direct with the Local Planning Authority: Halton Borough Council, Planning Department, Municipal Building, Widnes, WA8 7QF. Telephone: 0303 333 4300. Email: dev.control@halton.gov.uk

Occupancy

Part Let Part Vacant

Costs

Auction Details

The sale of this property will take place on the stated date by way of Multi lot timed auction and is being sold under the Unconditional sale type.

Binding contracts will be exchanged at the point of sale.

All sales are subject to our Common Auction Conditions and Bidder Terms. Properties located in Scotland and Northern Ireland will be subject to applicable local laws.

Auction Deposit and Fees

The following deposits and non- refundable auctioneers fees apply:

• 10% deposit (subject to a minimum of £5,000)

• Buyer’s Fee of 1.8% of the purchase price (subject to a minimum of £2,400 inc. VAT)

There may be additional fees listed in the Special Conditions of Sale, which will be available to view within the Legal Pack. You must read the Legal Pack carefully before bidding.

Additional Information

For full details about our auction processes, please refer to the Bidder Terms which can be viewed on our home page.

This explains the types of auction and sale methods we offer, the bidding registration process, your payment obligations, and how to view the Legal Pack (and any applicable home report for residential Scottish properties).

Guide Price & Reserve Price

Each property sold is subject to a Reserve Price. The Reserve Price will be within + or - 10% of the Guide Price. The Guide Price is issued solely as a guide so that a buyer can consider whether or not to pursue their interest. A full definition can be found within the Buyers Terms. 

General

Business Rates:
The property is entered in the 2026 Rating List with the following assessments with effect from 1 April 2026:


Point Accounting, Units 1-3 Salisbury Street: Offices and Premises - RV £13,500


Room 1, Units 1-3 Salisbury Street: Offices and Premises - RV £3,050


Room 3, Units 1-3 Salisbury Street: Beauty Salon and Premises - RV £3,050


Room 5, Units 1-3 Salisbury Street: Hairdressing Salon and Premises - RV £2,550


The Kitchen, Units 1-3 Salisbury Street: Kitchen and Premises - RV £3,000


Unit 4 Salisbury Street: Shop and Premises - RV £6,800


The Rateable Value (RV) is not the amount payable.

Tenure:
We understand the property is held leasehold by way of two 999-year leases from 1 January 1891 and 7 October 1943.

Address

1-4 Salisbury Street, Widnes, Cheshire WA8 6PJ

Guide Price

£185,000+

Key Features

  • Commercial investment opportunity
  • Part income producing (£12,000 per annum)
  • Potential for alternative uses, subject to consent
  • Town centre location
  • EPC Rating: B

Our Nearest Office:

Liverpool
Share this Property:

Chat with us online

Have a question? Start a chat with us now

Live chat
Background graphic

Looking To Finance A Purchase?

Short-Term Auction Finance.

Find out more

Looking to Sell Property or Land?

Click for a free appraisal

Free Appraisal

You may also like

018

Multi-Lot Timed Auction
17 Napier Avenue, Blackpool, Lancashire FY4 1PA
17 Napier Avenue, Blackpool, Lancashire FY4 1PA
Auction Ends: 29/04/2026

Guide Price: £150,000+

View Listing

029

Multi-Lot Timed Auction
Former Pretoria Sports & Social Club, 45 Westfield Lane, South Elmsall, Pontefract, West Yorkshire WF9 2QB
Former Pretoria Sports & Social Club, 45 Westfield Lane, South Elmsall, Pontefract, West Yorkshire WF9 2QB
Auction Ends: 29/04/2026

Guide Price: £250,000+

View Listing

030

Multi-Lot Timed Auction
Former Club Premises & House, 88 Weeland Road, Knottingley, West Yorkshire WF11 8AR
Former Club Premises & House, 88 Weeland Road, Knottingley, West Yorkshire WF11 8AR
Auction Ends: 29/04/2026

Guide Price: £150,000+

View Listing

450+ Strong Team

Local knowledge
national coverage

Our reach covers the UK with a network of over 30 UK offices.
Find the right professional using the below dropdowns.

Our Properties for Auction
Auction and guide block_Our auctions_2

Our Auctions

Explore our upcoming auctions and discover a wide range of properties and assets. With expert support and transparent bidding, you can find opportunities that match your goals, whether buying or selling.

Our Properties for Auction
Register for Auction Alerts
Auction and guide block_auction alerts_2

Auction Alerts

Stay up to date with all our latest auctions. Sign up for tailored alerts and receive notifications when new properties go live, so you’re ready to bid.

Register for Auction Alerts
Our Guide to Buying at Auction
Auction and guide block_guide to buying_2

Guide to buying

From first-time buyers to experienced investors, our Guide to Buying gives practical tips and advice on the auction process, researching lots, and bidding confidently to secure the best opportunities.

Our Guide to Buying at Auction
Our Guide to Selling at Auction
Auction and guide block_guide to selling_2

Guide to selling

Planning to sell at auction? Our Guide to Selling shows you how to prepare your property, set the right pricing strategy, and work with our team to achieve the best results — smoothly and successfully.

Our Guide to Selling at Auction

This site uses cookies to monitor site performance and provide a more responsive and personalised experience. You must agree to our use of certain cookies. For more information on how we use and manage cookies, please read our Privacy Policy.