Back to Results

064

99 Duke Street, St. Helens, Merseyside WA10 2JG

Auction Ends: 28/01/2026

Description

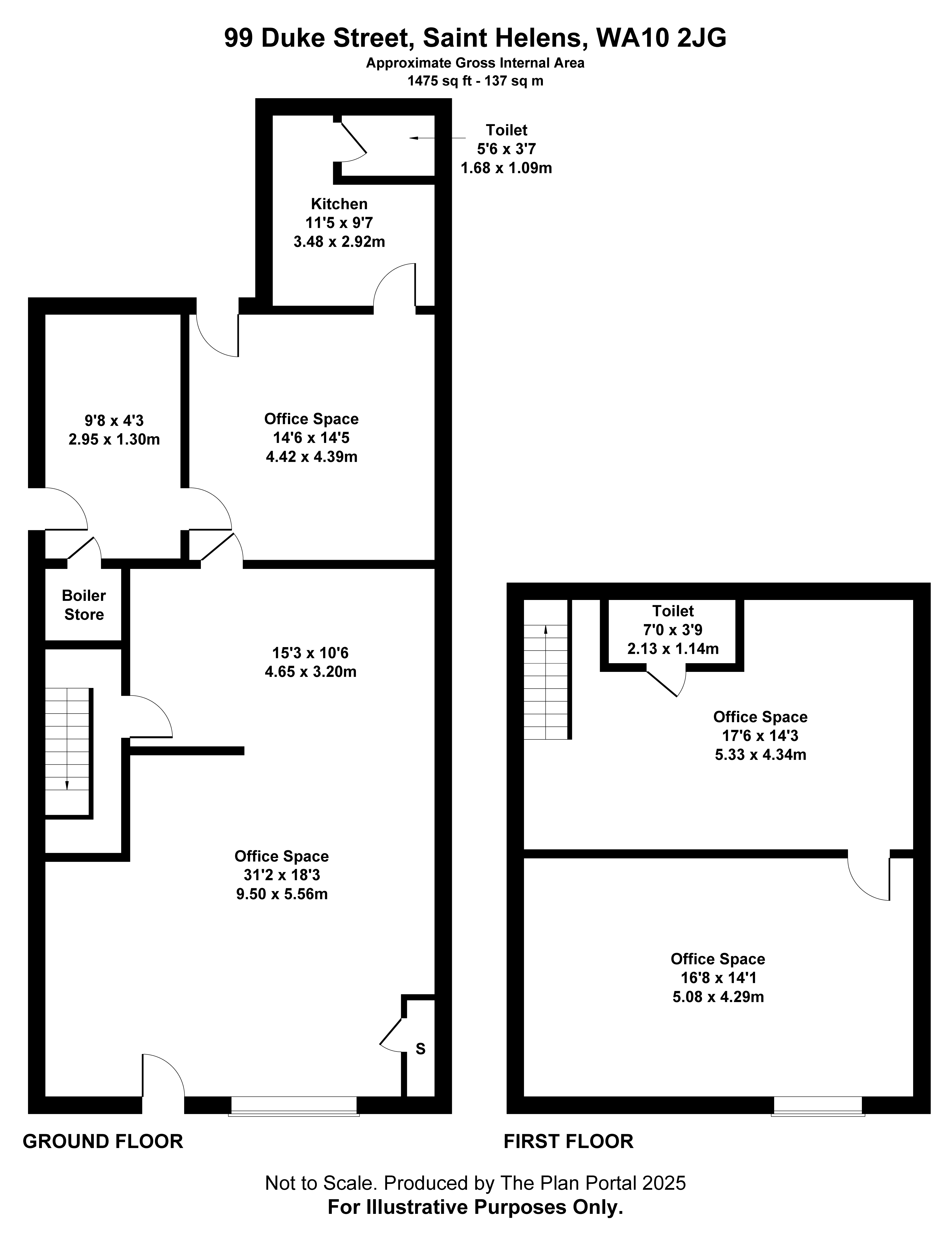
An investment / development opportunity comprising a brick built two storey office building extending to approximately 137 Sq.M (1,474 Sq.Ft) (source EPC) and offered with vacant possession. Internally the property has been completely remodelled and refurbished in recent years and provides office accommodation over ground and first floors but benefits from a recently approved planning consent to convert the first floor into a self contained two bedroom apartment. Currently the ground floor comprises a modern open plan office space to the front with separate offices, kitchen and W.C. to the rear whilst the first floor details two separate offices and W.C.

The property fronts onto the corner of Duke Street and Talbot Close in St Helen's town centre forming part of a row of commercial units which incluide a variety of independent retailers and businesses.

Accommodation

Ground floor
131 Sq.M (1414 Sq.Ft) - sizes are approximate

First floor
43 Sq.M (471 Sq.Ft) - sizes are approximate

Outside

Rear yard

Occupancy

Vacant posession upon completion

General


1. All the information provided on our website is for indicative purposes only and interested parties should refer to the contents of the legal pack and rely upon their own due diligence as a prudent bidder.


2. PLEASE NOTE BIDDING COMMENCES ON TUESDAY 27TH JANUARY AND CLOSES ON WEDNESDAY 28TH JANUARY.


3. Details of the Buyers Premium and any additional fees payable are contained within the legal documents.

Address

99 Duke Street, St. Helens, Merseyside WA10 2JG

Looking To
Finance A Purchase?

Short-Term Auction Finance.

  • Residential & commercial securities
  • Loans from £26,000
  • Automated valuations accepted
  • Rates from 0.7% per month
Find out more

Looking to Sell
Property or Land?

Click for a free appraisal

Free Appraisal

You may also like

026

Entered into a future auction
Land adjacent to 11 Pit Field Road, Carlton, Wakefield, West Yorkshire WF3 3QZ
Land adjacent to 11 Pit Field Road, Carlton, Wakefield, West Yorkshire WF3 3QZ
Auction Ends: 28/01/2026

Guide Price: £70,000+

View Listing

088

Multi-Lot Timed Auction
Former Delicatessen, Bridgehouse Gate, Pateley Bridge, Harrogate, North Yorkshire HG3 5HG
Former Delicatessen, Bridgehouse Gate, Pateley Bridge, Harrogate, North Yorkshire HG3 5HG
Auction Ends: 28/01/2026

Available for £99,000

View Listing

029

Sold at auction
1 Convent Close, Leyland, Lancashire PR25 4PW
1 Convent Close, Leyland, Lancashire PR25 4PW
Auction Ends: 28/01/2026

Sold for £56,000

View Listing

450+ Strong Team

Local knowledge
national coverage

Our reach covers the UK with a network of over 30 UK offices.
Find the right professional using the below dropdowns.

Our Properties for Auction
Auction and guide block_Our auctions_2

Our Auctions

Explore our upcoming auctions and discover a wide range of properties and assets. With expert support and transparent bidding, you can find opportunities that match your goals, whether buying or selling.

Our Properties for Auction
Register for Auction Alerts
Auction and guide block_auction alerts_2

Auction Alerts

Stay up to date with all our latest auctions. Sign up for tailored alerts and receive notifications when new properties go live, so you’re ready to bid.

Register for Auction Alerts
Our Guide to Buying at Auction
Auction and guide block_guide to buying_2

Guide to buying

From first-time buyers to experienced investors, our Guide to Buying gives practical tips and advice on the auction process, researching lots, and bidding confidently to secure the best opportunities.

Our Guide to Buying at Auction
Our Guide to Selling at Auction
Auction and guide block_guide to selling_2

Guide to selling

Planning to sell at auction? Our Guide to Selling shows you how to prepare your property, set the right pricing strategy, and work with our team to achieve the best results — smoothly and successfully.

Our Guide to Selling at Auction

This site uses cookies to monitor site performance and provide a more responsive and personalised experience. You must agree to our use of certain cookies. For more information on how we use and manage cookies, please read our Privacy Policy.